Бизнес
Этажность: 2
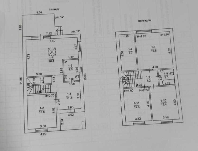
Общая площадь: 120 м²
Количество комнат: 4
Площадь участка: 5 соток
Тип дома: Дом
Ремонт: Евроремонт
Меблирование: Да
Описание
Современный 2-х этажный дом в Усатово, с евроремонтом!
По планировке: большая кухня-студия, три комнаты, два санузла, гардеробная и кладовка.
Две комнаты у нас спальные, в третей организовали домашний спортзал, но по желанию можно сделать домашний кабинет или еще одну спальню. На первом этаже теплые полы.
С кухни-студии есть выход на задний двор, где обустроена зона отдыха.
В доме есть индивидуальное газовое отопление. Автоматические ворота для въезда на территорию, на территории есть несколько парковочных мест. До Одессы 15 минут на машине!
Рядом есть супермаркет, отделение новой почты и остановка общественного транспорта.
Звоните, с радостью организуем для Вас показ!
По планировке: большая кухня-студия, три комнаты, два санузла, гардеробная и кладовка.
Две комнаты у нас спальные, в третей организовали домашний спортзал, но по желанию можно сделать домашний кабинет или еще одну спальню. На первом этаже теплые полы.
С кухни-студии есть выход на задний двор, где обустроена зона отдыха.
В доме есть индивидуальное газовое отопление. Автоматические ворота для въезда на территорию, на территории есть несколько парковочных мест. До Одессы 15 минут на машине!
Рядом есть супермаркет, отделение новой почты и остановка общественного транспорта.
Звоните, с радостью организуем для Вас показ!
ID: 903400103
Связаться с продавцом
xxx xxx xxx

