Бизнес
Продажа от застройщика
Без комиссии
Расстояние до ближайшего города: до 5 км.
Этажность: 2
Общая площадь: 135 м²
Количество комнат: 4
Площадь участка: 1.80 соток
Тип дома: Таунхаус
Год постройки / сдачи: На этапе строительства
Тип стен: Кирпичный
Внешнее утепление стен: Пенопласт
Тип кровли: Металлочерепица
Санузел: 2 и более
Отопление: Индивидуальное газовое
Ремонт: После строителей
Меблирование: Нет
Бытовая техника: Без бытовой техники
Мультимедиа: Без мультимедиа
Комфорт: Балкон, Забор, ограждение, Гараж, Охраняемая территория, Терраса
Коммуникации: Асфальтированная дорога, Центральная канализация, Электричество, Вывоз отходов, Газ, Центральный водопровод
Инфраструктура (до 500 метров): Аптека, Детский сад, Детская площадка, Ресторан, кафе, Школа, Магазин, киоск, Супермаркет, ТРЦ, Остановка транспорта
Ландшафт (до 1 км.): Озеро, Парк
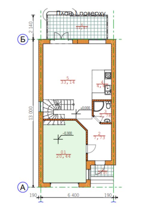
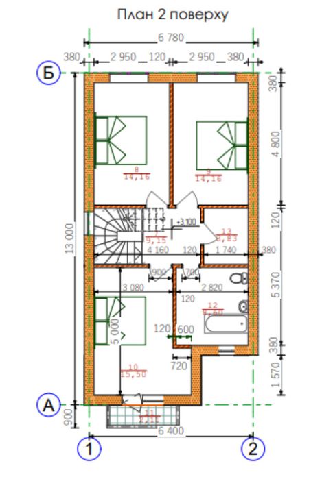
Описание
Характеристики:
• площа будинку – 135 м²
• приватна ділянка – 1,8 сотки
• простора тераса з панорамними вікнами
• гараж на 20 м² з окремим входом
Планування:
• 3 окремі кімнати
• 2 санвузли
• кухня-вітальня
• коридор та підсобні приміщення
Комунікації:
• міське водопостачання
• каналізація
• електроенергія
• газ
Переваги:
• екологічно чиста та тиха локація
• вулиця без транзитного руху
• можливість облаштувати власний дворик, зону барбекю чи сад
• зручне планування для сімейного життя
Дата здачі – до кінця 2025 року.
Таунхаус підійде для сімей з дітьми, молодих пар або як вигідна інвестиція для оренди.
Телефонуйте, щоб дізнатися більше та домовитися про перегляд!
Связаться с продавцом
xxx xxx xxx
