Бизнес
Вид объекта: Вторичка
Тип дома: Жилой фонд от 2021 р.
Название ЖК: TRIIINITY
Этаж: 15
Этажность: 23
Общая площадь: 132 м²
Тип сделки: Переуступка
Площадь кухни: 40 м²
Тип стен: Кирпичный
Класс жилья: Элит
Количество комнат: 3 комнаты
Планировка: Раздельная
Санузел: 2 и более
Отопление: Собственная котельная
Ремонт: После строителей
Меблирование: Нет
Комфорт: Видеонаблюдение, Балкон, лоджия, Терраса, Консъерж, Лифт, Подземный паркинг, Гостевой паркинг, Панорамные окна, Охраняемая территория, Грузовой лифт, Автономный электрогенератор
Коммуникации: Асфальтированная дорога, Центральная канализация, Электричество, Вывоз отходов, Центральный водопровод
Инфраструктура (до 500 метров): Отделение банка, банкомат, Кинотеатр, театр, Отделение почты, Ресторан, кафе, Школа, Магазин, киоск, Супермаркет, ТРЦ, Остановка транспорта, Центр города, Аптека, Больница, поликлиника, Детский сад, Рынок, Метро, Парк, зелёная зона, Детская площадка
Ландшафт (до 1 км.): Холмы, Парк
Инклюзивность: Дверь лифта шириной от 0,9 м., Лифт размером не менее 1,1х1,4 м., Пандус длиной более 2,4 м., Широкая дверь в подъезде (от 0,9 м.)
Описание
ПРОДАЖ 3-КІМНАТНОЇ КВАРТИРИ В ЖК TRIIINITY, ПЕЧЕРСЬКИЙ РАЙОН!
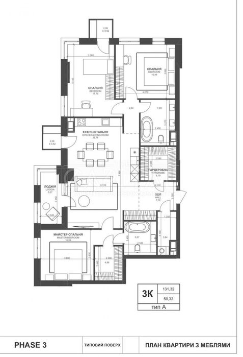
Продаётся просторная 3-комнатная квартира площадью 131,3 м² в жилом комплексе премиум-класса TRIIINITY, дом №3. Сдача в эксплуатацию — декабрь этого года.
Локация:
Квартира расположена в одном из самых престижных районов Киева — Печерске. В шаговой доступности находятся ТРЦ Ocean Plaza, станция метро "Дворец Украина", бизнес-центры, рестораны и другие объекты городской инфраструктуры.
О комплексе:
TRIIINITY — проект девелопера SEVEN HILLS, известного жилыми комплексами Park Avenue и Park Avenue VIP. Дом построен по монолитно-каркасной технологии, имеет закрытую охраняемую территорию, подземный паркинг и собственную инфраструктуру: фитнес-клуб, кафе, зоны отдыха и детскую площадку.
Планировка квартиры:
- Просторная кухня-гостиная 38 м² с выходом на лоджию
- Мастер-спальня с собственным санузлом и гардеробной
- Две дополнительные спальни (для детей или гостей)
- Два полноценных санузла
- Отдельная гардеробная
- Лоджия с панорамными окнами и видом на город
Квартира отлично подойдёт для комфортной жизни в центре столицы.
Продається простора 3-кімнатна квартира площею 131,3 м² у преміальному житловому комплексі TRIIINITY, будинок №3. Введення в експлуатацію заплановане на грудень цього року.
Розташування:
Квартира знаходиться в самому серці Печерського району — одному з найпрестижніших у Києві. У пішій доступності: ТЦ Ocean Plaza, станція метро "Палац Україна", бізнес-центри, ресторани, зручна транспортна розв'язка.
Про комплекс:
TRIIINITY — проєкт девелопера SEVEN HILLS, відомого своїми житловими комплексами Park Avenue та Park Avenue VIP. Будинок збудований за монолітно-каркасною технологією, має закриту територію з цілодобовою охороною, підземний паркінг та власну інфраструктуру: фітнес-клуб, кафе, зони відпочинку, дитячий майданчик.
Планування квартири:
- Простора кухня-вітальня 38 м² із виходом на лоджію
- Майстер-спальня з окремим санвузлом і гардеробом
- Дві додаткові спальні (для дітей або гостей)
- Два повноцінних санвузли
- Окрема гардеробна кімната
- Лоджія з панорамними вікнами та видом на місто
Квартира ідеально підходить для сімейного проживання в центрі столиці.
A 2 2 6 7 8
Связаться с продавцом
xxx xxx xxx

