Бизнес
Расстояние до ближайшего города: В городе
Расположение: Отдельное здание
Тип объекта: Административное здание
Этаж: 1
Этажность: 1
Общая площадь: 274 м²
Санузел: Да
Отопление: Твердотоплевное
Ремонт: Нет
Комфорт: Видеонаблюдение
Меблирование: Нет
Тип: Цех
Коммуникации: Центральная канализация, Электричество, Центральный водопровод
Описание
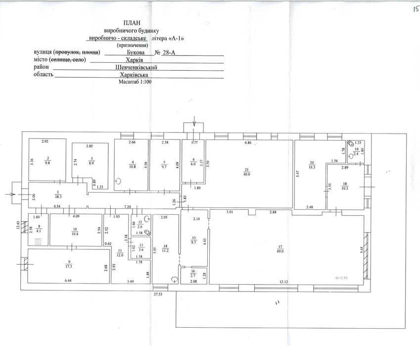
Продам под производство помещение площадью 274 м2 с большим лимитом воды и электроэнергии в районе Алексеевского лугопарка, по ул. Буковая, 28-А
Отдельно-стоящее здание с оформленной арендой земли (на финальной стадии оформления)
Территория огорожена.
2 подъезда для автомобилей
Есть возможность увеличения территории
Высота потолков - 3,6 м
Полы - плитка
Есть несколько санузлов и помещения для холодильников.
Система видеонаблюдения.
Железобетонные прекрытия.
Вода и канализация - центральная.
Лимит по воде - 50 м3
Электроэнергии 2 линии:
1) трехфазная линия - 120 кВт, (требует небольшого восстановления)
2) однофазная линия - 13 кВт - рабочая
Подведен газ.
Под;
1) чистое производство
2) пищевое производство
3) энергоемкое производство
.
Площадь помещений: 274 м2
Цена за м2: $383 за м2
Стоимость: $105 000
Без комиссии
Отдельно-стоящее здание с оформленной арендой земли (на финальной стадии оформления)
Территория огорожена.
2 подъезда для автомобилей
Есть возможность увеличения территории
Высота потолков - 3,6 м
Полы - плитка
Есть несколько санузлов и помещения для холодильников.
Система видеонаблюдения.
Железобетонные прекрытия.
Вода и канализация - центральная.
Лимит по воде - 50 м3
Электроэнергии 2 линии:
1) трехфазная линия - 120 кВт, (требует небольшого восстановления)
2) однофазная линия - 13 кВт - рабочая
Подведен газ.
Под;
1) чистое производство
2) пищевое производство
3) энергоемкое производство
.
Площадь помещений: 274 м2
Цена за м2: $383 за м2
Стоимость: $105 000
Без комиссии
ID: 914439102
Связаться с продавцом
xxx xxx xxx

