Бизнес
Расстояние до ближайшего города: В городе
Этажность: 1
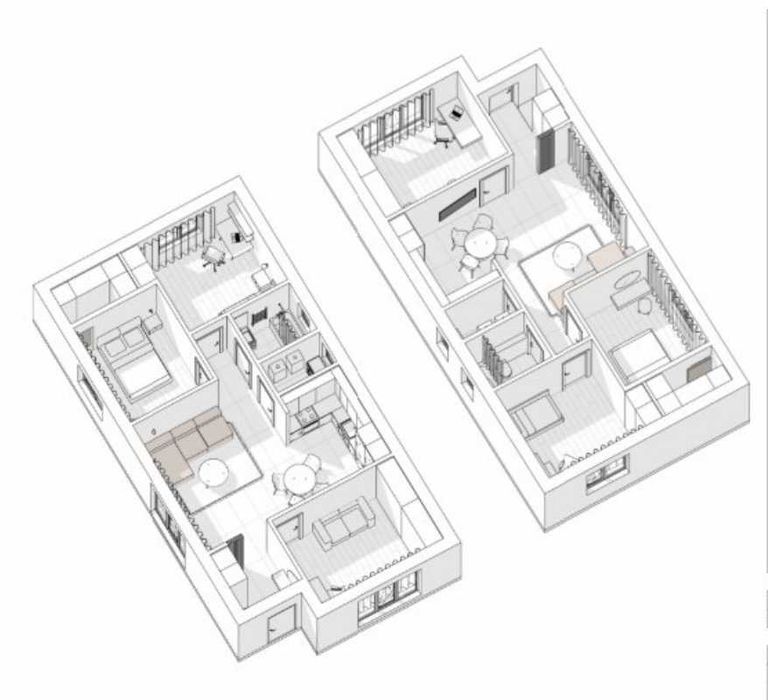
Общая площадь: 80 м²
Количество комнат: 3
Площадь участка: 3.50 соток
Тип дома: Дом
Тип стен: Другое
Отопление: Индивидуальное газовое
Ремонт: Под чистовую отделку
Меблирование: Нет
Коммуникации: Электричество, Газ, Канализация септик, Центральный водопровод
Описание
Продаж затишного будинку з газом у спокійному районі Луцька!
Лише 750 м до ЛНТУ — тиха вулиця, в місті, але без метушні
Код будинку: #25115459
Уявіть собі — ранок на власній терасі з кавою, свіже повітря, зелень навколо й абсолютна тиша… Саме так починаються дні у цьому будинку
Цей просторий, сучасний будинок — чудовий вибір для тих, хто шукає комфорт, якість і затишок в межах міста.
Основні характеристики:
Площа будинку 80м2
Житлова площа 34.38м2
Площа кухні-вітальні 29м2
-Газ заведено в будинок
-Електроенергія — 14 кВт (тариф “день-ніч”)
-Власна свердловина + переливний септик
-Фундамент — монолітний
-Стіни — якісний керамоблок, перестінки з цегли
-Фасад утеплено пінопластом (20 см)
-Перекриття утеплене мінеральною ватою (20 см) + утеплений армопояс
Ділянка — 3,5 сотки
Ділянка та благоустрій:
-Тераса з навісом — ідеальне місце для відпочинку
-Подвір’я вимощене бруківкою
-Огорожа та відкатні ворота — будуть встановлені
-Ландшафтний дизайн: рулонний газон, туї, барбарис
-Є готові дизайн-проєкти для внутрішнього ремонту
Фішка будинку — це ідеальне поєднання якості будівництва та затишної атмосфери. Будинок вже утеплений, з усіма ключовими комунікаціями — залишилось лише додати свій стиль всередині!
Лише 750 м до ЛНТУ — тиха вулиця, в місті, але без метушні
Код будинку: #25115459
Уявіть собі — ранок на власній терасі з кавою, свіже повітря, зелень навколо й абсолютна тиша… Саме так починаються дні у цьому будинку
Цей просторий, сучасний будинок — чудовий вибір для тих, хто шукає комфорт, якість і затишок в межах міста.
Основні характеристики:
Площа будинку 80м2
Житлова площа 34.38м2
Площа кухні-вітальні 29м2
-Газ заведено в будинок
-Електроенергія — 14 кВт (тариф “день-ніч”)
-Власна свердловина + переливний септик
-Фундамент — монолітний
-Стіни — якісний керамоблок, перестінки з цегли
-Фасад утеплено пінопластом (20 см)
-Перекриття утеплене мінеральною ватою (20 см) + утеплений армопояс
Ділянка — 3,5 сотки
Ділянка та благоустрій:
-Тераса з навісом — ідеальне місце для відпочинку
-Подвір’я вимощене бруківкою
-Огорожа та відкатні ворота — будуть встановлені
-Ландшафтний дизайн: рулонний газон, туї, барбарис
-Є готові дизайн-проєкти для внутрішнього ремонту
Фішка будинку — це ідеальне поєднання якості будівництва та затишної атмосфери. Будинок вже утеплений, з усіма ключовими комунікаціями — залишилось лише додати свій стиль всередині!
ID: 899535982
Связаться с продавцом
xxx xxx xxx

