Частное лицо
Вид объекта: Новостройка
Название ЖК: Русанівська Гавань
Этаж: 25
Этажность: 26
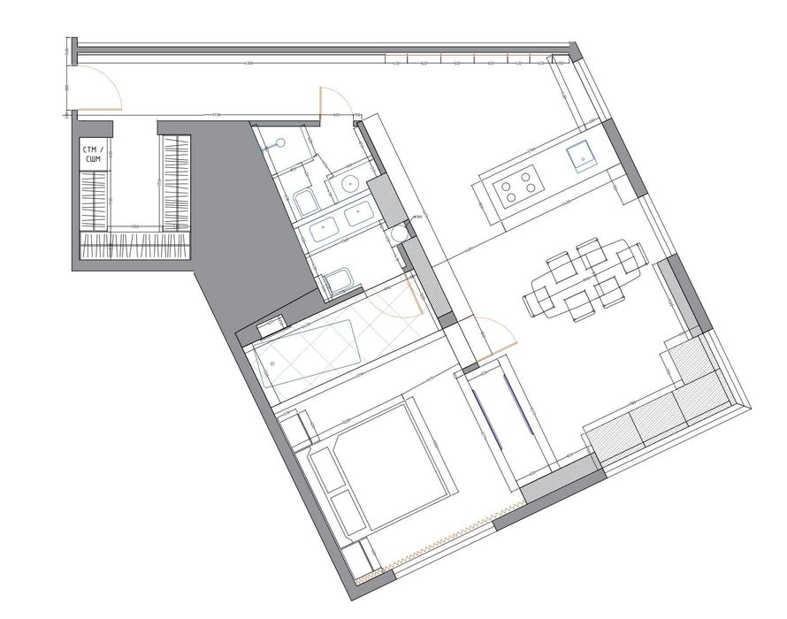
Общая площадь: 70 м²
Площадь кухни: 20 м²
Количество комнат: 2 комнаты
Описание
Найкраща пропозиція!
Пропонуємо до вашої уваги ексклюзивну пропозицію — розкішна супервидова квартира площею 70 м², розташована на 25 поверсі житлового комплексу Русанівська Гавань, за адресою вул. Микільсько-Слобідська, 13.
В квартирі на 50% виконаний ремонт, а саме: покладена плитка на підлогу, готові пофарбовані стіни, встановлені міжкімнатні двері, розведена електрика, встановлені вимикачі, розумний будинок, частково покладений ламiнат (недокладена частина ламінату лежит у пачках), підігрів полів, зібрана кухонна стінка.
Що залишилось зробити: докласти ламінат, змонтувати натяжну стелю, замовити кухонний острів з мийкою, зібрати міжкімнатну перегородку і зробити санвузол (по сан вузлу нічого не робилося)
У будинку встановлений генератор, який забезпечує безперебійну роботу ліфтів, водопостачання та загальних місць користування, дозволяючи вам не турбуватися про можливі відключення електроенергії.
Неймовірний вид на Дніпро з усіх кімнат, панорамні вікна!
Єдиний житловий комплекс розташований у кінематографічній місцевості, з неймовірними видами. Квартира двустороння, неперевершений вид на правий берег Києва, Батьківщину мати. З іншого боку вид на Церкву, ЖК Сонячна Рів'єра, ЖК Галактика. З чудовою власною набережною, комплекс однозначно влюбить Вас у себе з першого перегляду
Територія з цілодобовою охороною, підземним паркінгом, сучасними зонами відпочинку також є все необхідне для Вашого комфорту: магазини, кав'ярні, ресторани, відділення Нової Пошти, футбольне поле та багато іншого.
ЖК Русановская Гавань
Пропонуємо до вашої уваги ексклюзивну пропозицію — розкішна супервидова квартира площею 70 м², розташована на 25 поверсі житлового комплексу Русанівська Гавань, за адресою вул. Микільсько-Слобідська, 13.
В квартирі на 50% виконаний ремонт, а саме: покладена плитка на підлогу, готові пофарбовані стіни, встановлені міжкімнатні двері, розведена електрика, встановлені вимикачі, розумний будинок, частково покладений ламiнат (недокладена частина ламінату лежит у пачках), підігрів полів, зібрана кухонна стінка.
Що залишилось зробити: докласти ламінат, змонтувати натяжну стелю, замовити кухонний острів з мийкою, зібрати міжкімнатну перегородку і зробити санвузол (по сан вузлу нічого не робилося)
У будинку встановлений генератор, який забезпечує безперебійну роботу ліфтів, водопостачання та загальних місць користування, дозволяючи вам не турбуватися про можливі відключення електроенергії.
Неймовірний вид на Дніпро з усіх кімнат, панорамні вікна!
Єдиний житловий комплекс розташований у кінематографічній місцевості, з неймовірними видами. Квартира двустороння, неперевершений вид на правий берег Києва, Батьківщину мати. З іншого боку вид на Церкву, ЖК Сонячна Рів'єра, ЖК Галактика. З чудовою власною набережною, комплекс однозначно влюбить Вас у себе з першого перегляду
Територія з цілодобовою охороною, підземним паркінгом, сучасними зонами відпочинку також є все необхідне для Вашого комфорту: магазини, кав'ярні, ресторани, відділення Нової Пошти, футбольне поле та багато іншого.
ЖК Русановская Гавань
ID: 905888349
Связаться с продавцом
xxx xxx xxx
Опубликовано 08 ноября 2025 г.
Продаж видової квартири 70 м.кв. Русанівська Гавань
129 000 $
Местоположение
Киев, Днепровский
Киевская область