Бизнес
Без комиссии
Расстояние до ближайшего города: В городе
Расположение: Фасадное помещение
Тип объекта: Нежилое помещение в жилом фонде
Этаж: 1
Этажность: 15
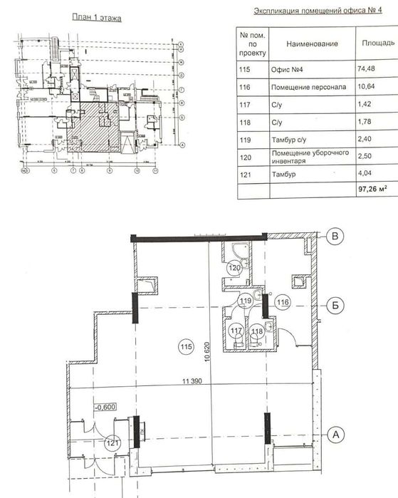
Общая площадь: 97.26 м²
Год постройки / сдачи: После 2015
Санузел: Да
Отопление: Индивидуальное электро
Ремонт: Нет
Комфорт: Гостевой паркинг, Панорамные окна
Тип: Магазин
Коммуникации: Асфальтированная дорога, Центральная канализация, Электричество, Вывоз отходов, Центральный водопровод
Инфраструктура (до 500 метров): Отделение банка, банкомат, Автовокзал, Аптека, Шоссе, трасса, Жилой массив, Офисы, бизнес центр, Стоянка, парковка, гараж, Отделение почты, Ресторан, кафе, бар, Учебные заведения, Супермаркет, ТРЦ
Описание
Продаж від власника!
Об'єкт: нежитлове приміщення в ЖК "Кристал"
Площа: 97,26 м²
Ціна продажу: $ 1500 за м²
Адреса: м. Харків, вул. Молочна 56
Клас: бізнес
Забудовник: ЖС-2
Поверховість: 1/15
Розташування: червона лінія, інтенсивний трафік
Стан: будівельний
Планування: вільне, свій санвузол, висота стель 4 м
Характеристики: окремий вхід, вiтрина
Комунікації: вода і каналізація центральні, опалення автономне
Застосування: магазин, салон, громадське харчування, офіс, стоматологія, нотаріат
Додатково: поряд маємо вільні приміщення 70 м² та 118 м².
Связаться с продавцом
xxx xxx xxx
Продаж торгівельного приміщення 97,26 м² у ЖК Кристал
1 500 $
Договорная
Местоположение
Харьков, Основянский
Харьковская область
