Бизнес
Продажа от застройщика
Без комиссии
Расстояние до ближайшего города: В городе
Этажность: 2
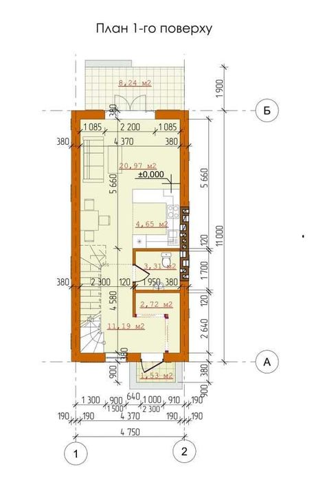
Общая площадь: 88 м²
Количество комнат: 2
Площадь участка: 1.50 соток
Тип дома: Таунхаус
Год постройки / сдачи: На этапе строительства
Тип стен: Кирпичный
Внешнее утепление стен: Пенопласт
Тип кровли: Металлочерепица
Санузел: 2 и более
Отопление: Индивидуальное газовое
Ремонт: После строителей
Меблирование: Нет
Бытовая техника: Без бытовой техники
Мультимедиа: Кабельное, цифровое ТВ, Скоростной интернет
Комфорт: Балкон, Забор, ограждение
Коммуникации: Асфальтированная дорога, Центральная канализация, Электричество, Вывоз отходов, Газ, Центральный водопровод
Инфраструктура (до 500 метров): Отделение банка, банкомат, Центр города, Аптека, Детский сад, Рынок, Парк, зелёная зона, Детская площадка, Отделение почты, Школа, Магазин, киоск, Супермаркет, ТРЦ, Остановка транспорта
Ландшафт (до 1 км.): Парк, Река
Описание
Наповнення:
- Піщано вапняна штукатурка
- Базова чорнова стяжка
- Вікна 2 камери, 3 скла, 6 камерний профіль
- Вхідні броньовані двері
- Утеплення даху 20 см мінвата
- Сходи бетонні на 2-й поверх
- Фасад 10см пінопласт
- Огорожа позаду будинку
- Облаштування прибудинкової території, бруківка.
Комунікації:
Міське водопостачання;
Міська каналізація;
Газ;
Електрика.
Усі деталі по телефону!
Связаться с продавцом
xxx xxx xxx

