Бизнес
Этажность: 2
Общая площадь: 148 м²
Количество комнат: 4
Площадь участка: 1.60 соток
Тип дома: Таунхаус
Санузел: 2 и более
Отопление: Собственная котельная
Ремонт: После строителей
Коммуникации: Газ, Скважина, Канализация септик
Описание
ID: 174 502
Пропонується на продаж двоповерховий таунхаус в елітному с. Байківці.
Кількість в ряду - п’ять.
Загальна площа складає 148 кв.м.
Планування:
Цокольний поверх: підвал 10,76 м2, гараж 22,41 м2.
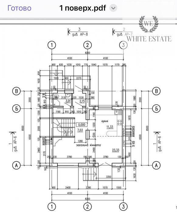
Перший поверх: прихожа, санвузол, вітальня студія + кухня, вітальня студія з виходом на терасу – 23,33 м2.
Другий поверх: 3 спальні, санвузол, гардеробна.
Велике переднє подвір’я і задній двір до кожного котеджу.
Розмір подвір’я – 86 м2
Задній двір у кожного котеджу різний за площею. У першого котеджу – 137 м2, другого – 69 м2, третього - 57 м2, четвертого – 45 м2, п’ятого – 43 м2.
Усі комунікації підведені: газ, електрика, вода.
Таунхаус повністю готовий до ремонту з чорновою штукатуркую, якісними трьохкамерними вікнами, вхідними дверима, сходами та гаражними воротами.
Перевагами цього котеджного комплексу є якісне планування та будівництво. Надається велика земельна ділянка до кожного таунхаусу.
У вас буде свій ексклюзивний котедж, тому що в комплексі лише 5 індивідуальних пропозицій, а не величезний мурашник.
Територія огороджена, уся інфраструктура для спільного користування: дитячий майданчик та велика зелена зона.
Розташування в живописному місці з неповторною природою, дуже зручна локація - близькість до міста 2 км.
Номер оголошення на сайті компанії: SH-174-502-LX.
Пропонується на продаж двоповерховий таунхаус в елітному с. Байківці.
Кількість в ряду - п’ять.
Загальна площа складає 148 кв.м.
Планування:
Цокольний поверх: підвал 10,76 м2, гараж 22,41 м2.
Перший поверх: прихожа, санвузол, вітальня студія + кухня, вітальня студія з виходом на терасу – 23,33 м2.
Другий поверх: 3 спальні, санвузол, гардеробна.
Велике переднє подвір’я і задній двір до кожного котеджу.
Розмір подвір’я – 86 м2
Задній двір у кожного котеджу різний за площею. У першого котеджу – 137 м2, другого – 69 м2, третього - 57 м2, четвертого – 45 м2, п’ятого – 43 м2.
Усі комунікації підведені: газ, електрика, вода.
Таунхаус повністю готовий до ремонту з чорновою штукатуркую, якісними трьохкамерними вікнами, вхідними дверима, сходами та гаражними воротами.
Перевагами цього котеджного комплексу є якісне планування та будівництво. Надається велика земельна ділянка до кожного таунхаусу.
У вас буде свій ексклюзивний котедж, тому що в комплексі лише 5 індивідуальних пропозицій, а не величезний мурашник.
Територія огороджена, уся інфраструктура для спільного користування: дитячий майданчик та велика зелена зона.
Розташування в живописному місці з неповторною природою, дуже зручна локація - близькість до міста 2 км.
Номер оголошення на сайті компанії: SH-174-502-LX.
ID: 799159419
Связаться с продавцом
xxx xxx xxx
Опубликовано 30 октября 2025 г.
Продаж таунхауса в Байківцях
62 000 $
Местоположение
Байковцы
Тернопольская область