Бизнес
Продажа от застройщика
Без комиссии
Расстояние до ближайшего города: В городе
Этажность: 2
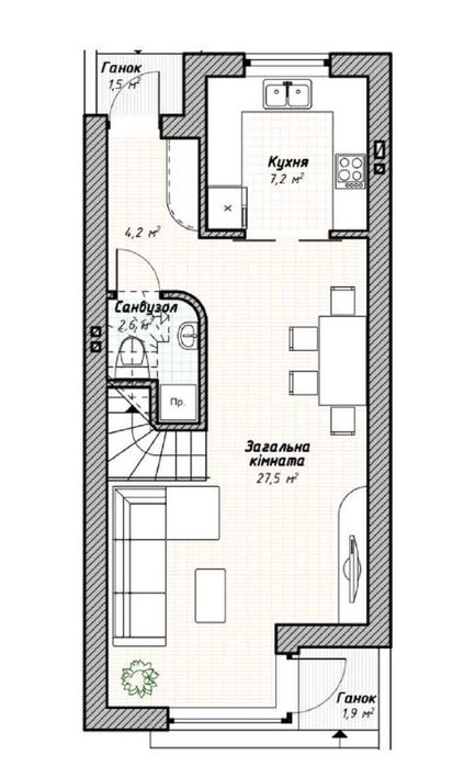
Общая площадь: 90 м²
Количество комнат: 2
Площадь участка: 2.50 соток
Тип дома: Таунхаус
Год постройки / сдачи: После 2015
Тип стен: Кирпичный
Внешнее утепление стен: Пенопласт
Тип кровли: Металлочерепица
Санузел: 2 и более
Отопление: Индивидуальное газовое
Ремонт: После строителей
Меблирование: Нет
Бытовая техника: Без бытовой техники
Комфорт: Балкон, Забор, ограждение
Коммуникации: Асфальтированная дорога, Центральная канализация, Электричество, Вывоз отходов, Газ, Центральный водопровод
Инфраструктура (до 500 метров): Детский сад, Школа, Остановка транспорта
Ландшафт (до 1 км.): Озеро, Парк, Река
Описание
Продаж Таунхауса площею 90 м2 з великою земельною ділянкою та закритою територією!
Зручне розташування забезпечує легкий доступ до міських зручностей, а водночас надає приватність та спокійне середовище для проживання.
Наповнення:
- Базова стяжка підлоги на 1-му поверсі
- Штукатурка (піщано-цементна) нанесена через сітку
- Утеплення даху 20 см мінвата
- сходи бетонні на 2-й поверх
- Утеплення фасаду 10см пінопластом
- Огорожа - дошка вкрита маслом (стиль ранчо)
- Металеві перила на балконі
- Облаштування прибудинкової території, бруківка, клумби
- Підключення комунікацій: міське водопостачання, міська каналізація, газ та світло 5кВт (3 фази)
Цей таунхаус - ідеальний вибір для тих, хто цінує комфорт, стиль і безпеку
ТЕЛЕФОНУЙТЕ!
Зручне розташування забезпечує легкий доступ до міських зручностей, а водночас надає приватність та спокійне середовище для проживання.
Наповнення:
- Базова стяжка підлоги на 1-му поверсі
- Штукатурка (піщано-цементна) нанесена через сітку
- Утеплення даху 20 см мінвата
- сходи бетонні на 2-й поверх
- Утеплення фасаду 10см пінопластом
- Огорожа - дошка вкрита маслом (стиль ранчо)
- Металеві перила на балконі
- Облаштування прибудинкової території, бруківка, клумби
- Підключення комунікацій: міське водопостачання, міська каналізація, газ та світло 5кВт (3 фази)
Цей таунхаус - ідеальний вибір для тих, хто цінує комфорт, стиль і безпеку
ТЕЛЕФОНУЙТЕ!
ID: 909021039
Связаться с продавцом
xxx xxx xxx

