Бизнес
Продажа от застройщика
Расстояние до ближайшего города: до 5 км.
Этажность: 1
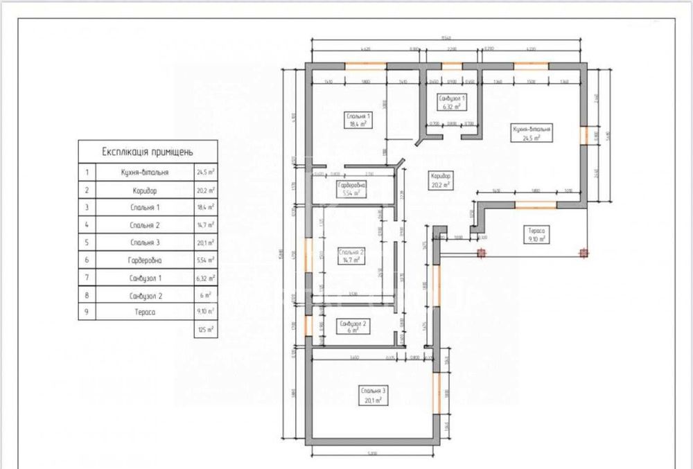
Общая площадь: 125 м²
Количество комнат: 3
Площадь участка: 5 соток
Тип дома: Дом
Год постройки / сдачи: После 2015
Тип стен: Газоблок
Внешнее утепление стен: Минеральная вата
Тип кровли: Рубероидная кровля
Санузел: 2 и более
Отопление: Индивидуальное газовое
Ремонт: После строителей
Меблирование: Нет
Комфорт: Забор, ограждение, Охраняемая территория, Терраса
Коммуникации: Электричество, Газ, Канализация септик, Скважина
Инфраструктура (до 500 метров): Парк, зелёная зона
Ландшафт (до 1 км.): Лес, Озеро
Описание
Продаж стильного одноповерхового будинку у Ворзелі
Якщо ви мрієте про власний будинок у тихому, зеленому передмісті столиці — цей варіант саме для вас!
Будинок розташований у затишній, облаштованій локації Ворзеля, подалі від міської метушні, але з усіма необхідними комунікаціями та зручностями поруч.
Локація
Асфальтований під’їзд веде прямо до двору — комфортно та практично в будь-яку погоду.
Поруч — магазини, зупинка транспорту, дитячі садки, школа, зона відпочинку та ліс. Ідеальне місце для спокійного життя та відновлення після робочих днів.
Про будинок
• Одноповерховий, сучасний і продуманий до дрібниць
• Раціональне планування — простора кухня-вітальня, кілька спалень, санвузол, котельня
• Великі вікна, що наповнюють будинок світлом
• Якісні матеріали будівництва та стильний зовнішній вигляд
Комунікації та технічні характеристики
• Вже заведений газ — опалення можна підключити одразу
• Власна свердловина глибиною 68 метрів — чиста вода без обмежень
• Септик об’ємом 8 кубів
• Проведено інтернет від “Бест” — стабільний сигнал для роботи та дозвілля
• Мінімальне оформлення документів — угода проходить швидко і без зайвої бюрократії
Переваги
Тиха вулиця, доброзичливі сусіди, чисте повітря, багато зелені навколо.
Будинок ідеально підходить для постійного проживання сім’ї або як заміський дім для відпочинку.
Перегляд у зручний для вас час!
Телефонуйте, щоб домовитись про зустріч та оцінити всі переваги цього будинку особисто.
Якщо ви мрієте про власний будинок у тихому, зеленому передмісті столиці — цей варіант саме для вас!
Будинок розташований у затишній, облаштованій локації Ворзеля, подалі від міської метушні, але з усіма необхідними комунікаціями та зручностями поруч.
Локація
Асфальтований під’їзд веде прямо до двору — комфортно та практично в будь-яку погоду.
Поруч — магазини, зупинка транспорту, дитячі садки, школа, зона відпочинку та ліс. Ідеальне місце для спокійного життя та відновлення після робочих днів.
Про будинок
• Одноповерховий, сучасний і продуманий до дрібниць
• Раціональне планування — простора кухня-вітальня, кілька спалень, санвузол, котельня
• Великі вікна, що наповнюють будинок світлом
• Якісні матеріали будівництва та стильний зовнішній вигляд
Комунікації та технічні характеристики
• Вже заведений газ — опалення можна підключити одразу
• Власна свердловина глибиною 68 метрів — чиста вода без обмежень
• Септик об’ємом 8 кубів
• Проведено інтернет від “Бест” — стабільний сигнал для роботи та дозвілля
• Мінімальне оформлення документів — угода проходить швидко і без зайвої бюрократії
Переваги
Тиха вулиця, доброзичливі сусіди, чисте повітря, багато зелені навколо.
Будинок ідеально підходить для постійного проживання сім’ї або як заміський дім для відпочинку.
Перегляд у зручний для вас час!
Телефонуйте, щоб домовитись про зустріч та оцінити всі переваги цього будинку особисто.
ID: 905811451
Связаться с продавцом
xxx xxx xxx
Опубликовано 28 ноября 2025 г.
Продаж одноповерхового будинку у лісовій частині Ворзеля
100 000 $
Местоположение
Ворзель
Киевская область