Бизнес
Без комиссии
Готов сотрудничать с риэлторами
Расстояние до ближайшего города: до 5 км.
Этажность: 1
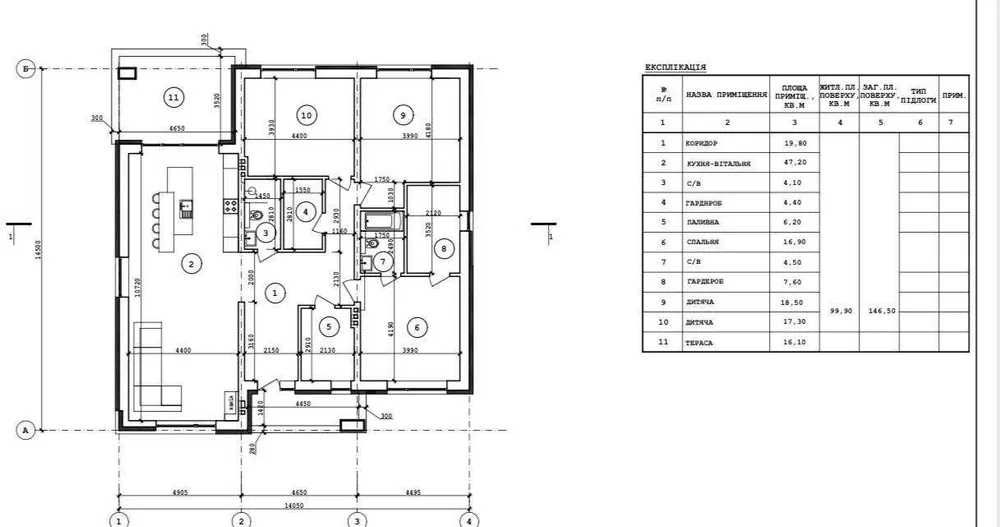
Общая площадь: 152 м²
Количество комнат: 4
Площадь участка: 5.80 соток
Тип дома: Дом
Год постройки / сдачи: На этапе строительства
Тип стен: Кирпичный
Внешнее утепление стен: Пенопласт
Тип кровли: Металлочерепица
Санузел: 2 и более
Отопление: Индивидуальное газовое
Ремонт: Под чистовую отделку
Меблирование: Нет
Мультимедиа: Скоростной интернет
Коммуникации: Электричество, Газ, Канализация септик, Скважина
Инфраструктура (до 500 метров): Отделение банка, банкомат, Центр города, Детский сад, Парк, зелёная зона, Детская площадка, Школа, Супермаркет, ТРЦ, Остановка транспорта
Ландшафт (до 1 км.): Лес
Описание
Локація: вул. Яблунева
Площа: 152 м2
Ціна: 1100 $/м2
Будинок збудований з цегли, утеплений пінопластом, буде повністю готовий фасад, вмонтовані дорогі пластикові вікна та броньовані вхідні двері. Заведені комунікації, газ(буде), світло 9 кВт, каналізація септик, скважина.
Подвірʼя буде повністю готове до вкладання бруківки. 5,8 СОТИХ власної ділянки, ззаду будинків величезний задній двір, де ви з легкістю можете розмістити альтанку, басейн чи щось інше, що вам до вподоби.
Планування: велика кухня-вітальня площею 47,2 м2 з виходом на власну терасу площею 16,1, санвузол роздільний, технічне приміщення, гардероб, 3 роздільні кімнати. Всюди є водяний підігрів підлоги, залита стяжка та чорнова штукатурка. Розведена сантехніка. Є вихід під камін. Стеля утеплена мінеральною ватою 25 см та є вихід на горище.
Будинок вартий уваги, на етапі будівництва. Здача на 2 квартал 2026 року.
Локація топова, тому цей варіант ідеальний для проживання.
Связаться с продавцом
xxx xxx xxx
Продаж одноповерхових будинків в Бірках. БЕЗ КОМІСІЇ!
167 200 $
Местоположение
Бирки
Львовская область