Бизнес
Расположение: Отдельное помещение
Этаж: 1
Этажность: 5
Общая площадь: 193 м²
Комфорт: Кондиционер, Пожарная сигнализация, Сигнализация, Гостевой паркинг
Тип: Другой
Коммуникации: Центральный водопровод, Асфальтированная дорога, Центральная канализация
Ландшафт (до 1 км.): Парк
Описание
Продаж магазину на "Карачунах".
- Центрально Міський район
- вул. Алмазна, 4
Технічні характеристики:
- перший поверх 5-ти поверхового житлового будинку
- "червона лінія"
- приміщення в робочому станні
- великі вітражні вікна
- парковка
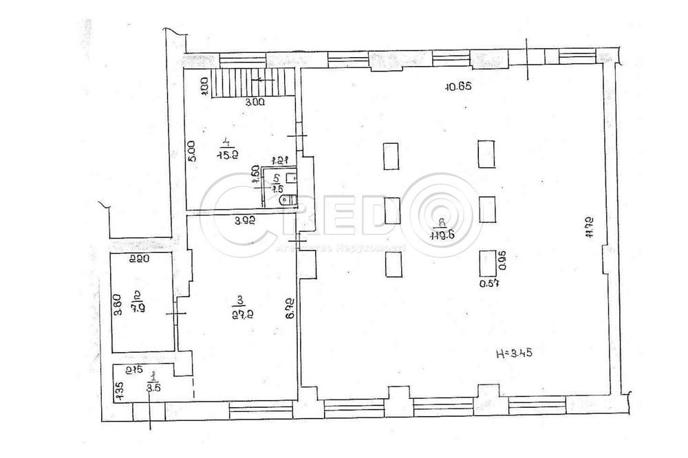
Планування об’єкту:
- загальна площа -193 кв.м
- перший поверх-175 кв.м
- Н=3,45м
- другий поверх-18 кв.м
- Н=2,14м
- окремий центральний та додатковий входи
Комунікації:
- центральне електропостачання 20кВт; 380 Вт
- центральне водопостачання, каналізація
- пожежна, охоронна сигналізації
- кондиціонери
Логістична розв’язка:
- приміщення розташоване в спальному мікрорайоні
- поруч зупинка громадського транспорту
- магазини, аптеки та безліч інших магазинів
- великий автомобільний та пішохідний трафік
Продаж 119 000 у.о.
За будь-якими питаннями за цією або іншими пропозиціями звертайтесь.
З повагою, команда Credo!
Номер оголошення на сайті компанії: SC-217-407-LX.
- Центрально Міський район
- вул. Алмазна, 4
Технічні характеристики:
- перший поверх 5-ти поверхового житлового будинку
- "червона лінія"
- приміщення в робочому станні
- великі вітражні вікна
- парковка
Планування об’єкту:
- загальна площа -193 кв.м
- перший поверх-175 кв.м
- Н=3,45м
- другий поверх-18 кв.м
- Н=2,14м
- окремий центральний та додатковий входи
Комунікації:
- центральне електропостачання 20кВт; 380 Вт
- центральне водопостачання, каналізація
- пожежна, охоронна сигналізації
- кондиціонери
Логістична розв’язка:
- приміщення розташоване в спальному мікрорайоні
- поруч зупинка громадського транспорту
- магазини, аптеки та безліч інших магазинів
- великий автомобільний та пішохідний трафік
Продаж 119 000 у.о.
За будь-якими питаннями за цією або іншими пропозиціями звертайтесь.
З повагою, команда Credo!
Номер оголошення на сайті компанії: SC-217-407-LX.
ID: 905522015
Связаться с продавцом
xxx xxx xxx
Опубликовано 11 февраля 2026 г.
Продаж магазину на Карачунах вул. Алмазна, 4
119 000 $
Местоположение
Кривой Рог, Центрально-Городской
Днепропетровская область