Бизнес
Вид объекта: Новостройка
Без комиссии
Тип дома: Жилой фонд от 2021 р.
Название ЖК: ЖК Echo Park
Этаж: 3
Этажность: 18
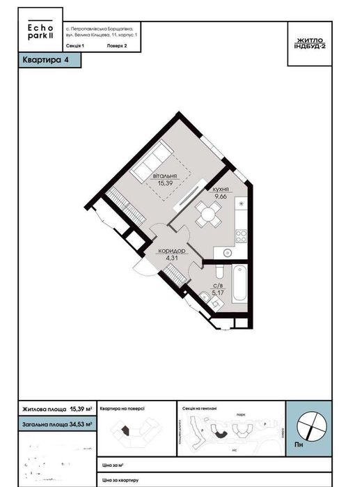
Общая площадь: 34.53 м²
Площадь кухни: 9.66 м²
Тип стен: Монолитный
Класс жилья: Бизнес
Количество комнат: 1 комната
Планировка: Раздельная
Санузел: Смежный
Отопление: Собственная котельная
Ремонт: После строителей
Меблирование: Нет
Комфорт: Гостевой паркинг, Парковочное место, Охраняемая территория
Инфраструктура (до 500 метров): Парк, зелёная зона, Супермаркет, ТРЦ
Описание
Продаж квартири 250м від окружної дороги
с.Петропавлівська Борщагівка , ЖК Echo Park.
Є вся дозвільна документація, інтенсивно ведеться будівництво
Здача 1ї та 2ї секції ІІ-й картал 2026р
Є розстрочка до 18 місяців.
Кваритра на 3 поверсі 18 поверхового будинку,
1к., 34,53/15,4/9,66
Квартира здається в стані, максимально наближеному до готовності для початку ремонтних робіт.
– Якісні вхідні двері
– Сучасні енергоефективні вікна
– Стяжка на підлозі
– Лічильники на світло, воду та тепло
– Заведена вода та електрика безпосередньо в квартиру
– Шумоізольовані стіни між квартирами для Вашого комфорту.
Конструкція будівлі:
• Монолітно-каркасна технологія будівництва — висока міцність та довговічність.
• Зовнішні стіни виконані з керамоблоку — екологічний та енергоефективний матеріал.
• Теплоізоляція — мінеральна вата товщиною 15 см, що забезпечує комфортний мікроклімат у будь-яку пору року.
Інженерні рішення:
• Покрівельна газова котельня на 18 поверсі — індивідуальне опалення та гаряча вода без залежності від міських мереж.
• Встановлені сучасні лічильники на електроенергію, воду та газ.
• Також передбачені лічильники системи пожежної сигналізації для Вашої безпеки.
Оздоблення та оснащення:
• Встановлені якісні вхідні двері та енергозберігаючі металопластикові вікна.
• На підлозі виконана цементно-піщана стяжка — готова основа під чистове оздоблення.
05*********76
06*********26
Запрошуємо до співпраці власників нерухомості! Ми допоможемо продати або здати Вашу нерухомість швидко та вигідно.
Додаткові пропозиції:
с.Петропавлівська Борщагівка , ЖК Echo Park.
Є вся дозвільна документація, інтенсивно ведеться будівництво
Здача 1ї та 2ї секції ІІ-й картал 2026р
Є розстрочка до 18 місяців.
Кваритра на 3 поверсі 18 поверхового будинку,
1к., 34,53/15,4/9,66
Квартира здається в стані, максимально наближеному до готовності для початку ремонтних робіт.
– Якісні вхідні двері
– Сучасні енергоефективні вікна
– Стяжка на підлозі
– Лічильники на світло, воду та тепло
– Заведена вода та електрика безпосередньо в квартиру
– Шумоізольовані стіни між квартирами для Вашого комфорту.
Конструкція будівлі:
• Монолітно-каркасна технологія будівництва — висока міцність та довговічність.
• Зовнішні стіни виконані з керамоблоку — екологічний та енергоефективний матеріал.
• Теплоізоляція — мінеральна вата товщиною 15 см, що забезпечує комфортний мікроклімат у будь-яку пору року.
Інженерні рішення:
• Покрівельна газова котельня на 18 поверсі — індивідуальне опалення та гаряча вода без залежності від міських мереж.
• Встановлені сучасні лічильники на електроенергію, воду та газ.
• Також передбачені лічильники системи пожежної сигналізації для Вашої безпеки.
Оздоблення та оснащення:
• Встановлені якісні вхідні двері та енергозберігаючі металопластикові вікна.
• На підлозі виконана цементно-піщана стяжка — готова основа під чистове оздоблення.
05*********76
06*********26
Запрошуємо до співпраці власників нерухомості! Ми допоможемо продати або здати Вашу нерухомість швидко та вигідно.
Додаткові пропозиції:
ID: 901100521
Связаться с продавцом
xxx xxx xxx
Опубликовано 21 апреля 2026 г.
Продаж квартири с.П. Борщагівка , ЖК Echo Park.
1 899 150 грн.
Местоположение
Петропавловская Борщаговка
Киевская область