Бизнес
Вид объекта: Вторичка
Название ЖК: New York Concept House
Этаж: 12
Этажность: 22
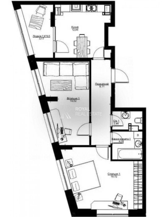
Общая площадь: 70.40 м²
Площадь кухни: 22 м²
Класс жилья: Бизнес
Количество комнат: 2 комнаты
Санузел: Смежный
Ремонт: Евроремонт
Меблирование: Да
Мультимедиа: Скоростной интернет, Телевизор, Wi-Fi
Комфорт: Кондиционер, Ванна, Лифт, Гостевой паркинг, Охраняемая территория
Коммуникации: Центральная канализация, Электричество, Центральный водопровод
Инфраструктура (до 500 метров): Аптека, Детский сад, Метро, Детская площадка, Ресторан, кафе, Школа, Магазин, киоск, Супермаркет, ТРЦ, Остановка транспорта
Описание
RR257 Продаж квартири у ЖК «New York Concept House» | вул. Антоновича, 74, Київ
Пропонується до продажу стильна квартира з якісним сучасним ремонтом у житловому комплексі бізнес-класу «New York Concept House», розташованому в самому центрі Києва. Інтер’єр створювався для власного проживання, тому в квартирі продумано кожну деталь для максимального комфорту.
Основні характеристики
— 2 кімнати
— простора кухня-студія
— великий санвузол
— сучасний якісний ремонт
— функціональне планування
Оснащення та техніка
Квартира повністю укомплектована технікою та меблями:
— пральна та сушильна машини
— посудомийна машина
— мікрохвильова піч з духовою шафою
— 2 великі телевізори
— кондиціонери у кожній кімнаті
— масажне ліжко
— місткі вбудовані шафи прихованого монтажу
Інфраструктура комплексу
ЖК «New York Concept House» — сучасний комплекс бізнес-класу з власною інфраструктурою:
— затишний внутрішній двір
— дитячі та спортивні майданчики
— зона для настільного тенісу
— бульвар для прогулянок
— романтична зона відпочинку з лавками
— наземний паркінг
— магазини та комерційні приміщення на перших поверхах
Локація
Комплекс розташований у центральній частині Києва, що забезпечує швидкий доступ до ключових локацій міста.
Поруч:
— школи та навчальні заклади
— супермаркети та бутики
— медичні установи
— кафе та ресторани
— парк
— станції метро
До Хрещатика — приблизно 5 хвилин на автомобілі.
Квартира ідеально підійде для тих, хто цінує комфорт, сучасний стиль та життя у самому центрі столиці.
Запрошуємо на перегляд разом з Royal Real Estate.
Код об’єкта: #RR257
Пропонується до продажу стильна квартира з якісним сучасним ремонтом у житловому комплексі бізнес-класу «New York Concept House», розташованому в самому центрі Києва. Інтер’єр створювався для власного проживання, тому в квартирі продумано кожну деталь для максимального комфорту.
Основні характеристики
— 2 кімнати
— простора кухня-студія
— великий санвузол
— сучасний якісний ремонт
— функціональне планування
Оснащення та техніка
Квартира повністю укомплектована технікою та меблями:
— пральна та сушильна машини
— посудомийна машина
— мікрохвильова піч з духовою шафою
— 2 великі телевізори
— кондиціонери у кожній кімнаті
— масажне ліжко
— місткі вбудовані шафи прихованого монтажу
Інфраструктура комплексу
ЖК «New York Concept House» — сучасний комплекс бізнес-класу з власною інфраструктурою:
— затишний внутрішній двір
— дитячі та спортивні майданчики
— зона для настільного тенісу
— бульвар для прогулянок
— романтична зона відпочинку з лавками
— наземний паркінг
— магазини та комерційні приміщення на перших поверхах
Локація
Комплекс розташований у центральній частині Києва, що забезпечує швидкий доступ до ключових локацій міста.
Поруч:
— школи та навчальні заклади
— супермаркети та бутики
— медичні установи
— кафе та ресторани
— парк
— станції метро
До Хрещатика — приблизно 5 хвилин на автомобілі.
Квартира ідеально підійде для тих, хто цінує комфорт, сучасний стиль та життя у самому центрі столиці.
Запрошуємо на перегляд разом з Royal Real Estate.
Код об’єкта: #RR257
ID: 916702054
Связаться с продавцом
xxx xxx xxx

