Перейти к основному разделу
Чат
  • Укр
  • Рус

Уведомления

Подать объявление
Продаж квартир у центрі міста | ЖК Avenue 44
Продаж квартир у центрі міста | ЖК Avenue 44
Продаж квартир у центрі міста | ЖК Avenue 44
Продаж квартир у центрі міста | ЖК Avenue 44
Продаж квартир у центрі міста | ЖК Avenue 44
РекламироватьПоднять

Бизнес

Вид объекта: Новостройка

Готов сотрудничать с риэлторами

Тип дома: Жилой фонд от 2021 р.

Название ЖК: Avenue 44

Этаж: 5

Год ввода в эксплуатацию: 2 026

Этажность: 7

Общая площадь: 34 м²

Тип сделки: Переуступка

Площадь кухни: 5 м²

Класс жилья: Бизнес

Количество комнат: 1 комната

Санузел: Смежный

Отопление: Индивидуальное электро

Меблирование: Нет

Комфорт: Подземный паркинг, Лифт, Охраняемая территория, Балкон, лоджия

Коммуникации: Асфальтированная дорога, Центральная канализация, Центральный водопровод, Электричество

Инфраструктура (до 500 метров): Автовокзал, Школа, Отделение почты, Магазин, киоск, Ресторан, кафе, Супермаркет, ТРЦ, Центр города, Детская площадка, Аптека, Детский сад, Остановка транспорта

Описание

Продаж квартир у центрі міста | ЖК Avenue 44

Сучасний, енергоефективний житловий комплекс у центральній частині міста.

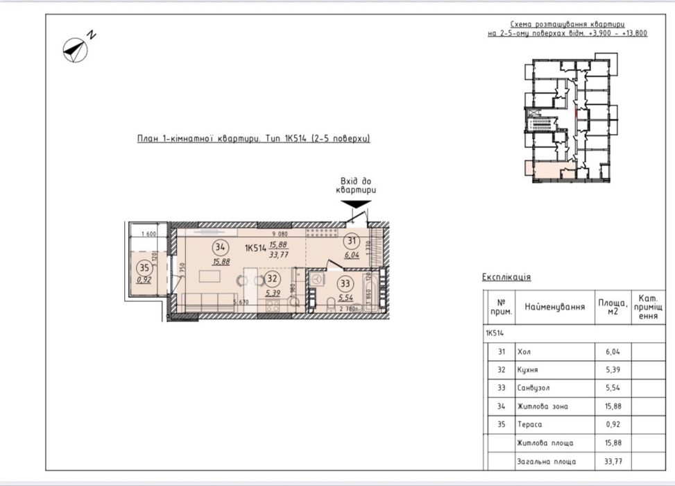
1-кімнатні квартири
Площа: 33,77 м² та 37,32 м²
Поверх: 5/7
Є ліфт (німецький виробник)

Планування: хол, кухня, кімната, санвузол, балкон

Стан:
стяжка
штукатурка стін
проведена електрика
електричний котел
індивідуальне електроопалення

Переваги комплексу:
монолітно-каркасний будинок
утеплення мінеральною ватою
підземний паркінг
закрита територія

Квартира 33,77м2 ціна 43250$
Квартира 37,32м2 ціна 47650$
Перша черга
Введення в експлуатацію — IV квартал 2026 р.
ID: 913827873

Связаться с продавцом

Поліна

на OLX с ноябрь 2014 г.

Онлайн в 09:12

xxx xxx xxx

Опубликовано сегодня в 12:59

Продаж квартир у центрі міста | ЖК Avenue 44

43 250 $

Местоположение

Location

Ужгород

Закарпатская область

Бесплатное приложение для твоего телефона