Перейти к основному разделу
Чат
  • Укр
  • Рус

Уведомления

Ваш профиль

Подать объявление
Продаж комерційного приміщення
Продаж комерційного приміщення
Продаж комерційного приміщення
Продаж комерційного приміщення
Продаж комерційного приміщення
РекламироватьПоднять

Бизнес

Расстояние до ближайшего города: В городе

Расположение: Фасадное помещение

Этаж: 1

Этажность: 1

Общая площадь: 65 м²

Санузел: Да

Отопление: Индивидуальное электро

Ремонт: Да

Комфорт: Парковочное место

Коммуникации: Асфальтированная дорога, Центральная канализация, Электричество, Вывоз отходов, Центральный водопровод

Инфраструктура (до 500 метров): Офисы, бизнес центр, Стоянка, парковка, гараж, Отделение почты, Транспортная развязка

Описание

Продаж комерційного приміщення

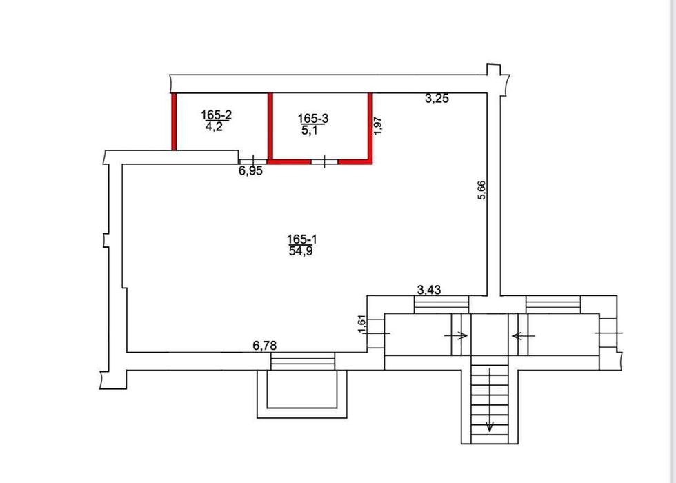
Пропонується до продажу комерційне приміщення загальною площею 65 м², розташоване на цокольному поверсі.

Код: 26367905

Зроблено якісний ремонт – не потребує додаткових вкладень.

Ідеально підходить для офісу, кабінетів чи іншого виду діяльності.

Підключено центральну каналізацію.

Заведено 8 кВт електроенергії.
ID: 901064709

Связаться с продавцом

Валерія Паращій

на OLX с февраль 2024 г.

Онлайн вчера в 14:05

xxx xxx xxx

Опубликовано 10 апреля 2026 г.

Продаж комерційного приміщення

48 000 $

Сервіс житлової нерухомості «RITM.home»

Местоположение

Location

Струмовка

Волынская область

Бесплатное приложение для твоего телефона