Бизнес
Расстояние до ближайшего города: В городе
Этаж: 1
Этажность: 8
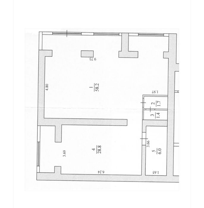
Общая площадь: 96 м²
Год постройки / сдачи: После 2015
Санузел: Да
Отопление: Индивидуальное электро
Ремонт: Нет
Описание
Продаж комерційного приміщення по вул. Корольова. Приміщення у новобудові, розташоване на першому поверсі житлового будинку. Будинок введений в експлуатацію.
Стан після забудовника.
Стан після забудовника.
ID: 826412852
Связаться с продавцом
xxx xxx xxx

