Бизнес
Расстояние до ближайшего города: В городе
Расположение: Часть здания
Тип объекта: Нежилое помещение в жилом фонде
Этаж: 2
Этажность: 7
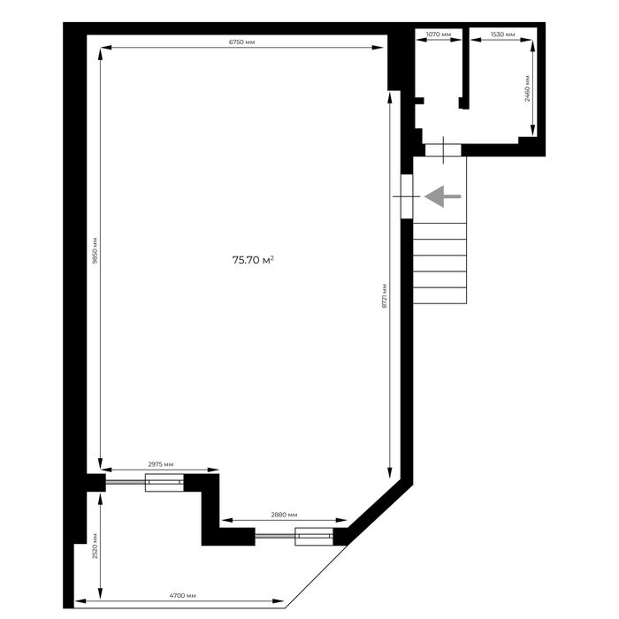
Общая площадь: 95 м²
Год постройки / сдачи: После 2015
Санузел: Да
Отопление: Индивидуальное газовое
Комфорт: Кондиционер, Лифт, Подогрев полов, Душевая кабина
Меблирование: Нет
Коммуникации: Асфальтированная дорога, Центральная канализация, Электричество, Вывоз отходов, Центральный водопровод
Инфраструктура (до 500 метров): Отделение банка, банкомат, Аптека, Больница, поликлиника, Ресторан, кафе, бар, Учебные заведения
Описание
Комерційне приміщення GLK 4B / продаж / ЖК GRAND HILLS
– Площа: 95 м²
– Поверх: 2 з 7
– Вартість м²: 1,737 $
– Повна вартість: 165,000 $
– Локація: Ужгород / вул. Загорська
Опис обʼєкта:
Пропонується до продажу комерційне приміщення GLK 4B у ЖК GRAND HILLS — престижному житловому комплексі бізнес-класу з каскадною забудовою в новому районі Ужгорода. Ідеально підходить для офісу, студії, медичного кабінету або салону краси.
Переваги:
• Фасадне розміщення з великими вікнами
• Готовність до оздоблення
• Вільне планування з можливістю зонування
• Простір на другому поверсі з хорошою інсоляцією
• Новий будинок з високими стандартами будівництва
Про ЖК GRAND HILLS:
• Бізнес-клас житла з продуманою архітектурою
• Каскадна забудова з панорамними краєвидами
• Повноцінна житлова інфраструктура
• Закрита територія з охороною та відеоспостереженням
• Поруч школа, садочок, супермаркет, кафе
Додатково:
• Без комісії
• Прямий продаж від забудовника GAZDA
• Повний юридичний супровід
• Можливість оформлення як комерції або житла
Телефонуйте для консультації або перегляду.
Перегляньте також інші обʼєкти GAZDA у ЖК GRAND HILLS.
– Площа: 95 м²
– Поверх: 2 з 7
– Вартість м²: 1,737 $
– Повна вартість: 165,000 $
– Локація: Ужгород / вул. Загорська
Опис обʼєкта:
Пропонується до продажу комерційне приміщення GLK 4B у ЖК GRAND HILLS — престижному житловому комплексі бізнес-класу з каскадною забудовою в новому районі Ужгорода. Ідеально підходить для офісу, студії, медичного кабінету або салону краси.
Переваги:
• Фасадне розміщення з великими вікнами
• Готовність до оздоблення
• Вільне планування з можливістю зонування
• Простір на другому поверсі з хорошою інсоляцією
• Новий будинок з високими стандартами будівництва
Про ЖК GRAND HILLS:
• Бізнес-клас житла з продуманою архітектурою
• Каскадна забудова з панорамними краєвидами
• Повноцінна житлова інфраструктура
• Закрита територія з охороною та відеоспостереженням
• Поруч школа, садочок, супермаркет, кафе
Додатково:
• Без комісії
• Прямий продаж від забудовника GAZDA
• Повний юридичний супровід
• Можливість оформлення як комерції або житла
Телефонуйте для консультації або перегляду.
Перегляньте також інші обʼєкти GAZDA у ЖК GRAND HILLS.
ID: 900171768
Связаться с продавцом
xxx xxx xxx

