Бизнес
Без комиссии
Расстояние до ближайшего города: В городе
Расположение: Часть здания
Тип объекта: Житловий фонд
Этаж: 1
Этажность: 4
Общая площадь: 180 м²
Год постройки / сдачи: После 2015
Санузел: Да
Отопление: Твердотоплевное
Ремонт: Да
Меблирование: Да
Тип: Другой
Коммуникации: Центральная канализация
Инфраструктура (до 500 метров): Центр города, Транспортная развязка
Описание
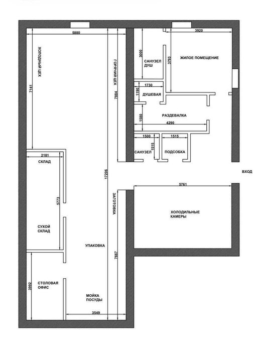
Продаж виробничого приміщення, закрита кухня.
Адреса: Левітана 2-А. (Голосіївський р-н, в'їзд на пр-т Науки)
Цоколь/Перший поверх житлового 4 поверхового дому 2020р. забудови.
Готове бізнес-рішення, є все для роботи 24/7 (місця для проживання співробітників) без відриву від виробничого процесу. При бажанні покупця можемо надати готовий пакет технологічних карт по концепції доставки хелсі меню.
Також підійде для іншої виробничої та складської діяльності з офісом на місці в межах центру міста.
Вода: центральна, гаряча гріється двома бойлерами по 100л. Зворотний осмос ECOSOFT ROBUST MINI.
Електрика: 3фази 20кВт (є можливість збільшити). Тариф як у звичайних людей. (Бо весь будинок це 1 абонент, не має окремого договору у квартир).
Опалення: Твердопаливний котел на весь будинок. У приміщенні фанкойл + батареї.
Вентиляцію виведено на дах будинку. (3 парасольки) регулювання припливу/витяжки. У жилій частині своя витяжка.
Освітлення: Лінійні INF-LED світильники. Температура світла 4000К, рівне світло від якого не втомлюються очі.
Можна обрати головою осбб і наводити свої порядки.
Будували під доставку правильного харчування. (5 лотків з їжею на цілий день) Обладнання та планування з розрахунком на це.
По всім питанням дзвоніть на номер 06******16
Адреса: Левітана 2-А. (Голосіївський р-н, в'їзд на пр-т Науки)
Цоколь/Перший поверх житлового 4 поверхового дому 2020р. забудови.
Готове бізнес-рішення, є все для роботи 24/7 (місця для проживання співробітників) без відриву від виробничого процесу. При бажанні покупця можемо надати готовий пакет технологічних карт по концепції доставки хелсі меню.
Також підійде для іншої виробничої та складської діяльності з офісом на місці в межах центру міста.
Вода: центральна, гаряча гріється двома бойлерами по 100л. Зворотний осмос ECOSOFT ROBUST MINI.
Електрика: 3фази 20кВт (є можливість збільшити). Тариф як у звичайних людей. (Бо весь будинок це 1 абонент, не має окремого договору у квартир).
Опалення: Твердопаливний котел на весь будинок. У приміщенні фанкойл + батареї.
Вентиляцію виведено на дах будинку. (3 парасольки) регулювання припливу/витяжки. У жилій частині своя витяжка.
Освітлення: Лінійні INF-LED світильники. Температура світла 4000К, рівне світло від якого не втомлюються очі.
Можна обрати головою осбб і наводити свої порядки.
Будували під доставку правильного харчування. (5 лотків з їжею на цілий день) Обладнання та планування з розрахунком на це.
По всім питанням дзвоніть на номер 06******16
ID: 913296937
Связаться с продавцом
xxx xxx xxx

