Бизнес
Описание
Продаж дитячого садочку в супер успішному Котеджному містечку Villaggo. Запрошуємо операторів навчальний закладів під забудову дитячого садочку ( можливий варіант під оренду) у розвиненому котеджному містечку Villaggo (250 будинків, з них 150 заселених)
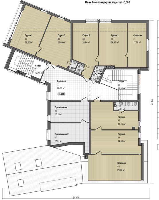
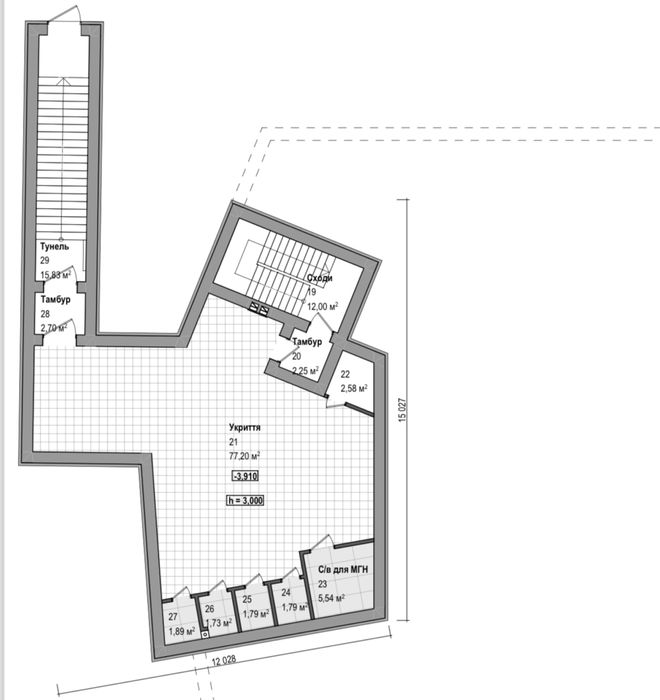
Київська область, село Білогородка, КМ Villaggo. Площа побудованого комплексу складе 758 кв метрів, з них професійне укриття складає 125 метрів, є можливість запланувати в проект укриття розміром 250 метрів. Садок розрахований на 40-80 дітей. Закрита територія під охороною та відеонаглядом. На території містечка працює професійний Ресторан, що може працювати у форматі кейтерінгу для навчального закладу. Котеджне містечко де вже проживає 150 сімей і має план забудови до 250 будинків. Поруч знаходиться ще одне котеджне містечко Зелений бульвар, та велика територія з приватними будинками. Потенціал місцевості для розвитку навчальних закладів просто феноменальний.
Вартість будівництва 700$ за метр квадратний, термін забудови 6-8 місяців при 100% оплаті. Можлива оплата частинами. Проект здається повністю з зовнішнім оздобленням, без ремонту. Можлива здача обʼєкту з внутрішнім оздобленням ( вартість обговорюється окремо)
Загальна площа будівлі 757,97 м.
Площа укриття 125,3 м.
Площа земельної ділянки 10,94 сотки
Кількість поверхів 2
Є план, візуалізація.
За додатковою інформацією або переглядами прохання звертатись по телефону.
Київська область, село Білогородка, КМ Villaggo. Площа побудованого комплексу складе 758 кв метрів, з них професійне укриття складає 125 метрів, є можливість запланувати в проект укриття розміром 250 метрів. Садок розрахований на 40-80 дітей. Закрита територія під охороною та відеонаглядом. На території містечка працює професійний Ресторан, що може працювати у форматі кейтерінгу для навчального закладу. Котеджне містечко де вже проживає 150 сімей і має план забудови до 250 будинків. Поруч знаходиться ще одне котеджне містечко Зелений бульвар, та велика територія з приватними будинками. Потенціал місцевості для розвитку навчальних закладів просто феноменальний.
Вартість будівництва 700$ за метр квадратний, термін забудови 6-8 місяців при 100% оплаті. Можлива оплата частинами. Проект здається повністю з зовнішнім оздобленням, без ремонту. Можлива здача обʼєкту з внутрішнім оздобленням ( вартість обговорюється окремо)
Загальна площа будівлі 757,97 м.
Площа укриття 125,3 м.
Площа земельної ділянки 10,94 сотки
Кількість поверхів 2
Є план, візуалізація.
За додатковою інформацією або переглядами прохання звертатись по телефону.
ID: 848734372
Связаться с продавцом
xxx xxx xxx
Опубликовано 04 ноября 2025 г.
Продаж дитячий садочок під забудову
529 999 $
Местоположение