Бизнес
Без комиссии
Этажность: 1
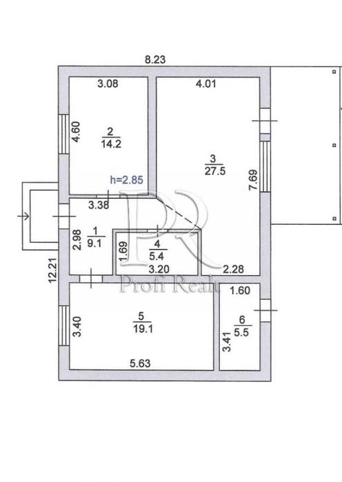
Общая площадь: 102 м²
Количество комнат: 3
Площадь участка: 6 соток
Тип дома: Дом
Ремонт: После строителей
Меблирование: Нет
Описание
Продається сучасний одноповерховий 3-кімнатний будинок у с. Погреби, вул. Деснянська — всього 3 км до Києва. Будинок збудований у 2024 році, розташований у приватному секторі на ділянці 6 соток. Загальна площа — 102 м², житлова — 86 м², простора кухня — 27,5 м². Зручне планування дозволяє створити комфортний простір саме під ваші потреби. Стан — під ремонт, що дає можливість реалізувати власний дизайн без переплат за чужі рішення. Інфраструктура поруч: супермаркет «Сільпо» (300 м), «Фора» (500 м), АТБ, спорткомплекс «Атлетико», тенісні корти, центральний стадіон, школа, дитячий садок, амбулаторія. Тиха локація з швидким доступом до столиці — ідеальний варіант для тих, хто хоче жити в приватному будинку поруч із Києвом. ID: 2929
ID: 916332927
Связаться с продавцом
xxx xxx xxx

