Бизнес
Без комиссии
Расположение: Отдельное здание
Тип объекта: Торгово-офисный центр
Этажность: 3
Общая площадь: 3 700 м²
Год постройки / сдачи: 2011 - 2015
Санузел: Да
Отопление: Индивидуальное газовое
Ремонт: Да
Комфорт: Видеонаблюдение, Кондиционер, Лифт, Пожарная сигнализация, Мебель на кухне, Парковочное место, Охраняемая территория, Грузовой лифт
Коммуникации: Центральная канализация, Электричество, Вывоз отходов, Газ, Центральный водопровод
Инфраструктура (до 500 метров): Офисы, бизнес центр, Стоянка, парковка, гараж, ЖД станция, Ресторан, кафе, бар, Супермаркет, ТРЦ, Транспортная развязка
Описание
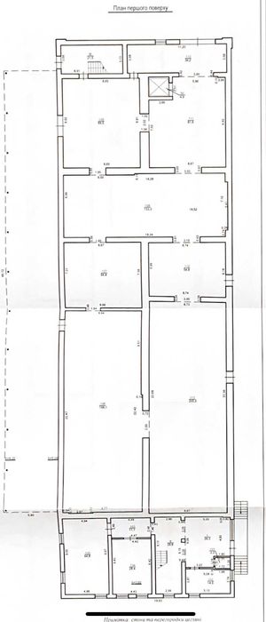
Продаж комерційного об'єкту - будівлі вул. Промислова 21 під офісний, виробничий, складський чи торговий вид діяльності. Площа 3700м2.
-Перший поверх промислова підлого, цегляні стіни, висота стелі 4,87м. Кондиціонування та система вентиляції. Площа 1339,2 м2. Великі вантажні ворота без рампи. Світло, газ, вода. Власна підстанція із потужністю 560кВт.
-Другий поверх із кабінетною системою, арстронг, туалети, облатована кухня, вантажний ліфт, оптоволокно, пожежна сигналізація. Є діючі орендарі із довготерміновими договорами оренди, у кожному офісі система кондиціонування. Площа 1023 м2.
-Третій поверх відновлено частину площею 160м2. Загальна площа поверху 1107м2 та потребує ремонту, 0 цикл.
-Мансардний поверх 242,8м2 0 цикл. Розташована котельна та 2 газових котла Vaillant 100.
Дуже хороше розташування, близько до транспортних розв‘язок у напрямку Києва, 15хв до центру міста. Власна огородженна територія 0,86га із можливістю розвертання вантажівок. Є можливість, облаштування місць для паркування.
Є діючі орендарі.
Можливий продаж через фізичну особу або ТОВ.
-Перший поверх промислова підлого, цегляні стіни, висота стелі 4,87м. Кондиціонування та система вентиляції. Площа 1339,2 м2. Великі вантажні ворота без рампи. Світло, газ, вода. Власна підстанція із потужністю 560кВт.
-Другий поверх із кабінетною системою, арстронг, туалети, облатована кухня, вантажний ліфт, оптоволокно, пожежна сигналізація. Є діючі орендарі із довготерміновими договорами оренди, у кожному офісі система кондиціонування. Площа 1023 м2.
-Третій поверх відновлено частину площею 160м2. Загальна площа поверху 1107м2 та потребує ремонту, 0 цикл.
-Мансардний поверх 242,8м2 0 цикл. Розташована котельна та 2 газових котла Vaillant 100.
Дуже хороше розташування, близько до транспортних розв‘язок у напрямку Києва, 15хв до центру міста. Власна огородженна територія 0,86га із можливістю розвертання вантажівок. Є можливість, облаштування місць для паркування.
Є діючі орендарі.
Можливий продаж через фізичну особу або ТОВ.
ID: 868309896
Связаться с продавцом
xxx xxx xxx
Опубликовано 06 ноября 2025 г.
Продаж будівлі вул. Промислова 21
2 250 000 $
Местоположение
Львов, Лычаковский
Львовская область
