Бизнес
Без комиссии
Готов сотрудничать с риэлторами
Расстояние до ближайшего города: до 5 км.
Этажность: 2
Общая площадь: 256 м²
Количество комнат: 4
Площадь участка: 12 соток
Тип дома: Коттедж
Кадастровый номер: 3223151000:04:065:0057
Год постройки / сдачи: После 2015
Внешнее утепление стен: Минеральная вата
Тип кровли: Поликарбонатные листы
Санузел: 2 и более
Ремонт: После строителей
Коммуникации: Асфальтированная дорога, Электричество, Вывоз отходов, Газ, Канализация септик, Скважина
Ландшафт (до 1 км.): Лес, Озеро, Река
Описание
Продаж будинок 256 м2 преміум класу в стилі High-tech
Велика Дамба, Конча-Заспа, Козин, кооператив "Роздолля" (між р. Козинка та Дніпро), Київська область
Площа будинку: 256 м²
Ділянка: 12 соток з соснами та деревами.
!!!Є можливість придбати ще ділянку і розширитись до 30 соток.
Авторський проект, готовий дизайн-проект інтерʼєру (візуалізації додаються).
Команда будівельників, яка працювала з самого початку, на місці і готова доробити проект до готового стану "під ключ".
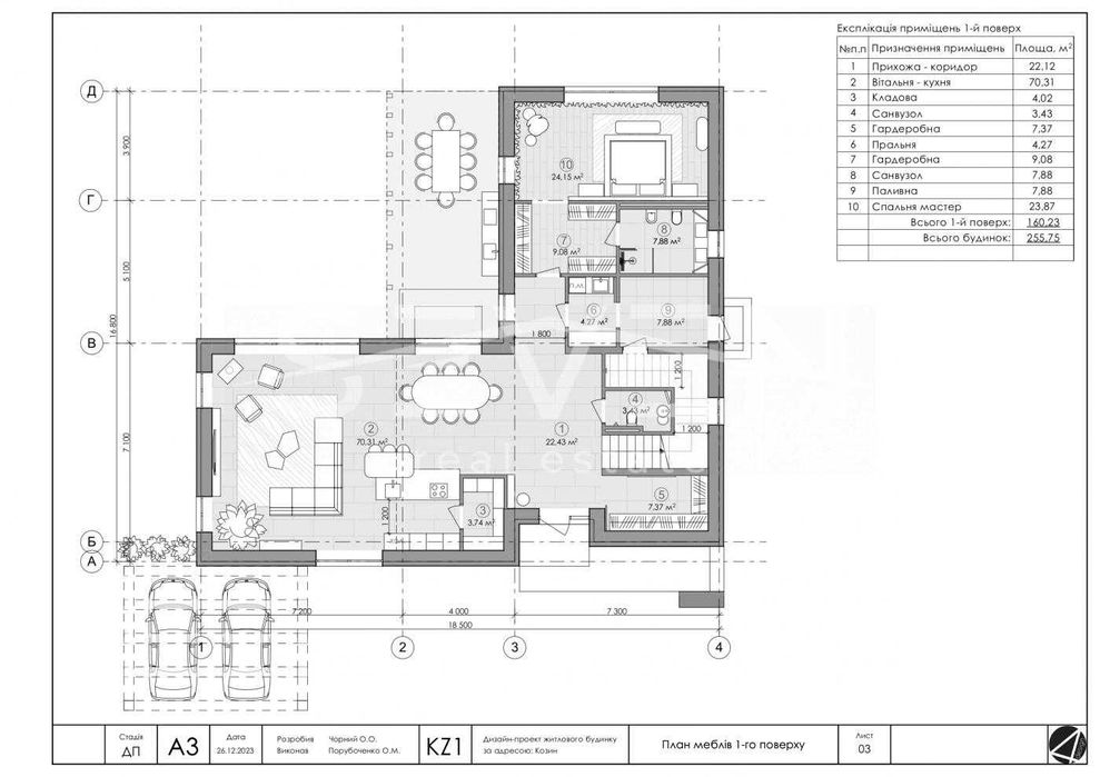
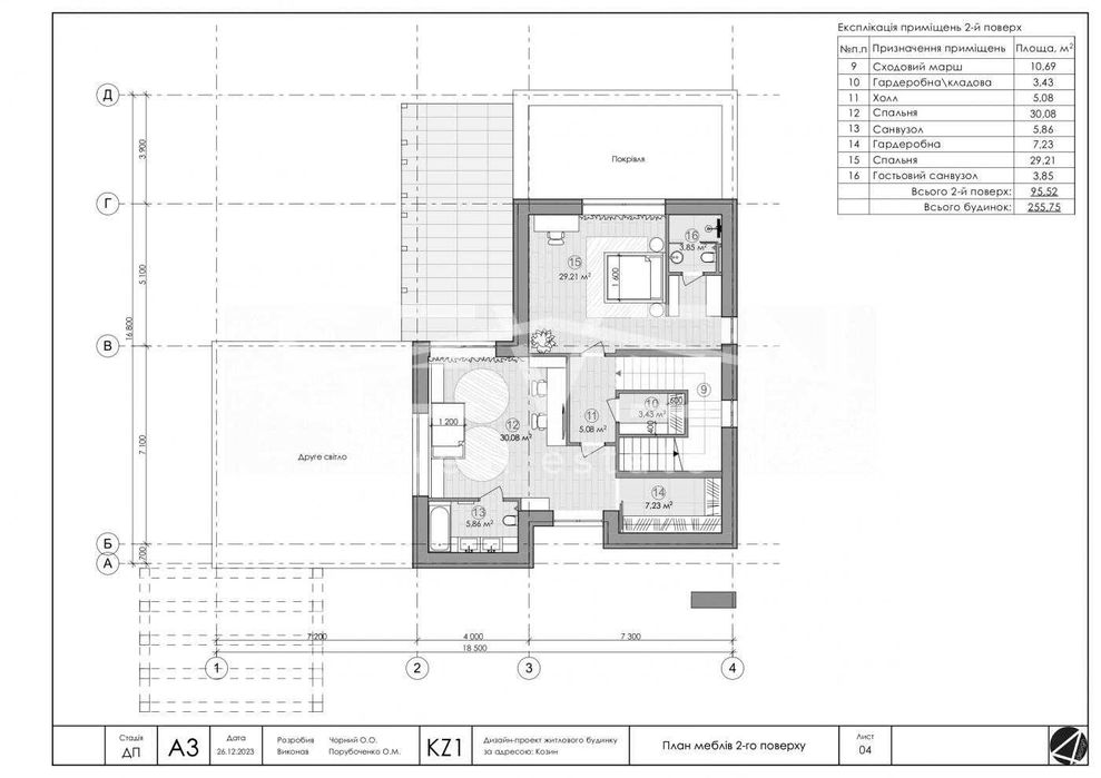
Планування складається з:
1 поверх: кухня-вітальня, майстер-спальня з гардеробною та ванною кімнатою, побутова кімната, гардеробна, санвузол, топочна
2 поверх: 2 майстер-спальні з санвузлами та гардеробами
Фундамент: Т образний стрічковий моноліт
Стіни: повнотіла цегла, утеплення 150 мм мінеральної вати
Фасад: клінкерна цегла, дерево, композит
Покрівля: плоска, ПВХ мембрана, утеплення — 250 мм
Вікна: алюміневий профіль ALUPROF MB-86, склопакети Guardian ClimaGuard
Комунікації:
Електрика: 40 кВт + резерв 5 кВт (власна підстанція)
Газ: проект готовий, газ на вулиці
Мережі: свердловина, септик
Територія: Рівна ділянка 30 соток правильної форми
Заїзд: власний заїзд прямо з дамби - монолітна підпірна стіна, інший заїзд з території кооперативу
Закрите котеджне містечко "Роздолля" з охороною
Вихід з кооперативу до р. Козинка, поруч р. Дніпро
Спуск для водного транспорту
Можливість для активного відпочинку та рибалка (квадроцикли, SUP тощо)
Локація:
поруч Дніпровська Хвиля, Берег, Світанок, Сьоме небо,
Козин, Конча-Заспа, Романків, Лісники, Ходосівка — елітні сусіди та розвинена інфраструктура поруч. Ідеально для тих, хто прагне спокою, статусу та близькості до Києва.
---
Продажа дома 256 м2 премиум класса в стиле High-tech.
Большая Дамба, Конча-Заспа, Козин, кооператив "Раздолье" (между г. Козинка и Днепр), Киевская область
Площадь дома: 256 м²
Участок: 12 соток с соснами и деревьями.
!!! Есть возможность докупить еще участок и расширить территорию до 30 соток.
Авторский проект, готовый дизайн-проект интерьера (визуализации прилагаются).
Команда строителей, работавшая изначально, на месте и готовая доработать проект до готового состояния "под ключ".
Планировка состоит из:
1 этаж: кухня-гостиная, мастер-спальня с гардеробной и ванной комнатой, бытовая комната, туалет, санузел, топочная
2 этаж: 2 мастер-спальни с санузлами и гардеробами
Фундамент: Т образный ленточный монолит
Стены: полнотелая кирпич, утепление 150 мм минеральной ваты
Фасад: клинкерная кирпич, дерево, композит
Кровля: плоская, ПВХ мембрана, утепление – 250 мм
Окна: алюминиевый профиль ALUPROF MB-86, стеклопакеты Guardian ClimaGuard
Коммуникации:
Электричество: 40 кВт + резерв 5 кВт (собственная подстанция)
Газ: проект готовок, газ на улице
Сети: скважина, септик
Территория: Ровный участок 30 соток правильной формы
Заезд: собственный заезд прямо с дамбы – монолитная подпорная стена, другой заезд с территории кооператива
Закрытый коттеджный городок "Раздолье" с охраной
Выход из кооператива в р. Козинка, возле р. Днепр
Спуск для водного транспорта
Возможность для активного отдыха и рыбалки (квадроциклы, SUP и т.д.)
Локация:
рядом Днепровская Волна, Берег, Рассвет, Седьмое небо,
Козин, Конча-Заспа, Романков, Лесники, Ходосовка – элитные соседи и развитая инфраструктура рядом. Идеально для тех, кто стремится к покою, статусу и близости к Киеву.
Велика Дамба, Конча-Заспа, Козин, кооператив "Роздолля" (між р. Козинка та Дніпро), Київська область
Площа будинку: 256 м²
Ділянка: 12 соток з соснами та деревами.
!!!Є можливість придбати ще ділянку і розширитись до 30 соток.
Авторський проект, готовий дизайн-проект інтерʼєру (візуалізації додаються).
Команда будівельників, яка працювала з самого початку, на місці і готова доробити проект до готового стану "під ключ".
Планування складається з:
1 поверх: кухня-вітальня, майстер-спальня з гардеробною та ванною кімнатою, побутова кімната, гардеробна, санвузол, топочна
2 поверх: 2 майстер-спальні з санвузлами та гардеробами
Фундамент: Т образний стрічковий моноліт
Стіни: повнотіла цегла, утеплення 150 мм мінеральної вати
Фасад: клінкерна цегла, дерево, композит
Покрівля: плоска, ПВХ мембрана, утеплення — 250 мм
Вікна: алюміневий профіль ALUPROF MB-86, склопакети Guardian ClimaGuard
Комунікації:
Електрика: 40 кВт + резерв 5 кВт (власна підстанція)
Газ: проект готовий, газ на вулиці
Мережі: свердловина, септик
Територія: Рівна ділянка 30 соток правильної форми
Заїзд: власний заїзд прямо з дамби - монолітна підпірна стіна, інший заїзд з території кооперативу
Закрите котеджне містечко "Роздолля" з охороною
Вихід з кооперативу до р. Козинка, поруч р. Дніпро
Спуск для водного транспорту
Можливість для активного відпочинку та рибалка (квадроцикли, SUP тощо)
Локація:
поруч Дніпровська Хвиля, Берег, Світанок, Сьоме небо,
Козин, Конча-Заспа, Романків, Лісники, Ходосівка — елітні сусіди та розвинена інфраструктура поруч. Ідеально для тих, хто прагне спокою, статусу та близькості до Києва.
---
Продажа дома 256 м2 премиум класса в стиле High-tech.
Большая Дамба, Конча-Заспа, Козин, кооператив "Раздолье" (между г. Козинка и Днепр), Киевская область
Площадь дома: 256 м²
Участок: 12 соток с соснами и деревьями.
!!! Есть возможность докупить еще участок и расширить территорию до 30 соток.
Авторский проект, готовый дизайн-проект интерьера (визуализации прилагаются).
Команда строителей, работавшая изначально, на месте и готовая доработать проект до готового состояния "под ключ".
Планировка состоит из:
1 этаж: кухня-гостиная, мастер-спальня с гардеробной и ванной комнатой, бытовая комната, туалет, санузел, топочная
2 этаж: 2 мастер-спальни с санузлами и гардеробами
Фундамент: Т образный ленточный монолит
Стены: полнотелая кирпич, утепление 150 мм минеральной ваты
Фасад: клинкерная кирпич, дерево, композит
Кровля: плоская, ПВХ мембрана, утепление – 250 мм
Окна: алюминиевый профиль ALUPROF MB-86, стеклопакеты Guardian ClimaGuard
Коммуникации:
Электричество: 40 кВт + резерв 5 кВт (собственная подстанция)
Газ: проект готовок, газ на улице
Сети: скважина, септик
Территория: Ровный участок 30 соток правильной формы
Заезд: собственный заезд прямо с дамбы – монолитная подпорная стена, другой заезд с территории кооператива
Закрытый коттеджный городок "Раздолье" с охраной
Выход из кооператива в р. Козинка, возле р. Днепр
Спуск для водного транспорта
Возможность для активного отдыха и рыбалки (квадроциклы, SUP и т.д.)
Локация:
рядом Днепровская Волна, Берег, Рассвет, Седьмое небо,
Козин, Конча-Заспа, Романков, Лесники, Ходосовка – элитные соседи и развитая инфраструктура рядом. Идеально для тех, кто стремится к покою, статусу и близости к Киеву.
ID: 903559140
Связаться с продавцом
xxx xxx xxx
