Бизнес
Этажность: 2
Общая площадь: 297 м²
Количество комнат: 6
Площадь участка: 15 соток
Тип дома: Дом
Санузел: 2 и более
Меблирование: Да
Бытовая техника: Плита, Духовой шкаф
Мультимедиа: Wi-Fi
Комфорт: Ванна, Душевая кабина, Подсобные помещения, Баcсейн, Забор, ограждение, Гараж
Коммуникации: Электричество
Инфраструктура (до 500 метров): Парк, зелёная зона
Описание
Продаж будинку з басейном, Лесники, Обуховский р-н.
Продажа дома с бассейном, Лесники, Обуховский р-н.
Неймовірний будинок ! Розумні технології ! Дизайнерський ремонт ! Індивідуальний проект !
15 хвилин до центру міста, 5 хв. торгівельний центр Атмосфера, Домосфера, Артмол, Сільпо.
В будинку виконаний дизайнерський ремонт, використовували матеріали світових виробників. Укомплектована всіма необхідними меблями та технікою преміум сигменту для комфортного проживання.
Будинок обладнаний системами управління зі смартфону. “Hey Siri” або/і “Hey Alexa” стануть щоденними супутниками вашого комфортного життя. Освітлення, опалення, всі двері та ворота, охоронна та пожежна системи Ajax керуються з вашого мобільного пристрою.
Загальна площа 297 кв.м.
Земельна ділянка 15 соток.
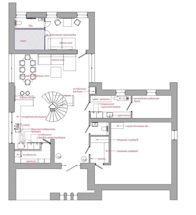
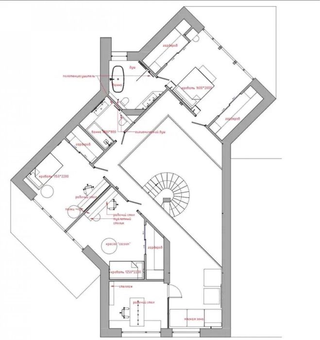
Ідеальне планування :
4 спальні з власними гардеробними та панорамними вікнами, кабінет, 4 санвузли, зал з кухнею, ігрова зона та атріум. Приміщення вхідної зони першого поверху містить окрему гардеробну для верхнього одягу та взуття. Окремі технічні приміщення: серверна та пральня. Продумана, зручна і одночасно прихована кладова для кухні.
Гараж на два автомобілі із зручними нішами для речей та окремою ванною з душем для домашніх улюбленців. Зручне та просторе горище з полицями для зберігання речей.
Розроблена розумна система автоматичного перемикання на резервне живлення, у випадку відсутності електроенергії з мережі (керується зі смартфону). Батареї забезпечують будинок електроенергією до 10 годин в автономному режимі, а також можливе допоміжне підключення генератора на 8 кВт. Також є можливість підключити сонячні батареї у майбутньому. Встановлені стабілізатори напруги для безперебійної роботи електромережі. Електрощитова та освітлення розроблені з використанням матеріалів бренду Legrand.
Прекрасний ландшафтний дизайн із ставком та міні-річкою з водоспадом в оточенні червоної калини та української липи, окрема зона з молодим фруктовим садом з грядками, кущі різних ягід, канадський дуб, зона хвойних дерев.
Автополив, який керується віддалено зі смартфону. У ставку є рибки та черепахи, які будуть радувати вас щодня, шум води створює неймовірні відчуття дикої природи. Вихід на терасу виконаний в один рівень з ландшафтом.
Басейн 4х10м з системою протитечії та чудовою підсвіткою з можливістю підключення теплового насосу для обігріву. Літній душ поруч з басейном. Баскетбольне кільце та турнік для щоденного заняття спортом.
Закладені комунікації для сонячних батарей.
Закладені комунікації для системи вентиляції з рекуператором. Виконано заземлення та блискавкозахист, підігріви даху.
Фундамент - 52 палі (сваї) довжиною 9 метрів.
Водопостачання - Скважина 120 м.
Водовідведення – біо септик 3 секції.
Будинок введено в експлуатацію.
#A6809
Продажа дома с бассейном, Лесники, Обуховский р-н.
Неймовірний будинок ! Розумні технології ! Дизайнерський ремонт ! Індивідуальний проект !
15 хвилин до центру міста, 5 хв. торгівельний центр Атмосфера, Домосфера, Артмол, Сільпо.
В будинку виконаний дизайнерський ремонт, використовували матеріали світових виробників. Укомплектована всіма необхідними меблями та технікою преміум сигменту для комфортного проживання.
Будинок обладнаний системами управління зі смартфону. “Hey Siri” або/і “Hey Alexa” стануть щоденними супутниками вашого комфортного життя. Освітлення, опалення, всі двері та ворота, охоронна та пожежна системи Ajax керуються з вашого мобільного пристрою.
Загальна площа 297 кв.м.
Земельна ділянка 15 соток.
Ідеальне планування :
4 спальні з власними гардеробними та панорамними вікнами, кабінет, 4 санвузли, зал з кухнею, ігрова зона та атріум. Приміщення вхідної зони першого поверху містить окрему гардеробну для верхнього одягу та взуття. Окремі технічні приміщення: серверна та пральня. Продумана, зручна і одночасно прихована кладова для кухні.
Гараж на два автомобілі із зручними нішами для речей та окремою ванною з душем для домашніх улюбленців. Зручне та просторе горище з полицями для зберігання речей.
Розроблена розумна система автоматичного перемикання на резервне живлення, у випадку відсутності електроенергії з мережі (керується зі смартфону). Батареї забезпечують будинок електроенергією до 10 годин в автономному режимі, а також можливе допоміжне підключення генератора на 8 кВт. Також є можливість підключити сонячні батареї у майбутньому. Встановлені стабілізатори напруги для безперебійної роботи електромережі. Електрощитова та освітлення розроблені з використанням матеріалів бренду Legrand.
Прекрасний ландшафтний дизайн із ставком та міні-річкою з водоспадом в оточенні червоної калини та української липи, окрема зона з молодим фруктовим садом з грядками, кущі різних ягід, канадський дуб, зона хвойних дерев.
Автополив, який керується віддалено зі смартфону. У ставку є рибки та черепахи, які будуть радувати вас щодня, шум води створює неймовірні відчуття дикої природи. Вихід на терасу виконаний в один рівень з ландшафтом.
Басейн 4х10м з системою протитечії та чудовою підсвіткою з можливістю підключення теплового насосу для обігріву. Літній душ поруч з басейном. Баскетбольне кільце та турнік для щоденного заняття спортом.
Закладені комунікації для сонячних батарей.
Закладені комунікації для системи вентиляції з рекуператором. Виконано заземлення та блискавкозахист, підігріви даху.
Фундамент - 52 палі (сваї) довжиною 9 метрів.
Водопостачання - Скважина 120 м.
Водовідведення – біо септик 3 секції.
Будинок введено в експлуатацію.
#A6809
ID: 858739246
Связаться с продавцом
xxx xxx xxx

