Бизнес
Готов сотрудничать с риэлторами
Расстояние до ближайшего города: В городе
Этажность: 3
Общая площадь: 205 м²
Количество комнат: 5
Площадь участка: 1.50 соток
Тип дома: Таунхаус
Год постройки / сдачи: После 2015
Санузел: 2 и более
Ремонт: Евроремонт
Описание
Продаж стильного таунхаусу на вул. Зубрицького. 
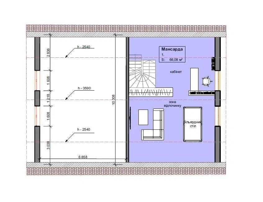
Площа 205 кв.м., два поверхи та мансарда, ділянка 1.5 сотки. Просторий будинок, побудований у 2024 році та готовий до заселення. Є підігрів підлоги, панорамні вікна.
Перший поверх: велика кухня-студія з виходом на власну терасу, санвузол та комірка. Другий поверх: дві простори спальні, санвузол і велика мастер-спальня з власним санвузлом.
Третій поверх: ще дві великі кімнати, які можна використовувати як кабінет, гостьову спальню або гардеробну.
Будинок розташований у тихому районі з хорошим заїздом, асфальтованою дорогою та бруківкою. Є автоматичні ворота та гараж. Комунікації: газ, центральний водопровід, електрика та центральна каналізація.
Ціна: 190 000 $
Площа 205 кв.м., два поверхи та мансарда, ділянка 1.5 сотки. Просторий будинок, побудований у 2024 році та готовий до заселення. Є підігрів підлоги, панорамні вікна.
Перший поверх: велика кухня-студія з виходом на власну терасу, санвузол та комірка. Другий поверх: дві простори спальні, санвузол і велика мастер-спальня з власним санвузлом.
Третій поверх: ще дві великі кімнати, які можна використовувати як кабінет, гостьову спальню або гардеробну.
Будинок розташований у тихому районі з хорошим заїздом, асфальтованою дорогою та бруківкою. Є автоматичні ворота та гараж. Комунікації: газ, центральний водопровід, електрика та центральна каналізація.
Ціна: 190 000 $
ID: 904076029
Связаться с продавцом
xxx xxx xxx

