Бизнес
Этажность: 2
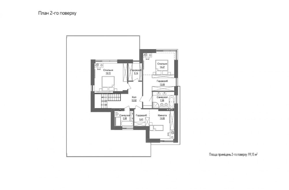
Общая площадь: 275.47 м²
Количество комнат: 6
Площадь участка: 10 127 соток
Тип дома: Дом
Ремонт: После строителей
Описание
Продаж будинку, КМ “Заграва 2”, Буча
Продажа дома, КМ «Заграва 2», Буча
“Заграва 2” — це затишне, сучасне котеджне містечко, створене для комфортного сімейного життя
серед природи. Тут поєднано якісне будівництво, стильну архітектуру та зручне розташування.
Технічні характеристики
Кімнати: 4 кухня-вітальня, навіс для двох авто або гараж
Стіни: цегла 380 мм
Утеплення: мінеральна вата 100 мм
Фасад: німецька клінкерна плитка Feldhaus фасадна дошка (атмосферостійка)
Вікна: енергозберігаючі, двокамерні склопакети Salamander або VEKA
Покрівля: модульна металочерепиця Novatik, виробництва Румунії. Сталь Voestalpine (Австрія)
Електрика: 10 кВт три фази
Вода: свердловина в кожному будинку
Каналізація: центральна
Опалення: газове
Інтернет: оптоволоконний
Безпека та благоустрій
Закрита територія з КПП, цілодобова охорона, датчики руху по периметру котеджного містечка
Відеоспостереження 24/7
Паркомісце: гостьовий паркінг
Благоустрій: озеленення, дитячий майданчик, спортивний майданчик, міні футбольне поле
Дороги: асфальтований під’їзд і вулиці вимощені ФЕМ
Освітлення: вуличне по всій території
Інфраструктура поруч
Школа
Садочок
Супермаркет
Зупинка громадського транспорту
Парк, озеро, зони для прогулянок
Переваги “Заграви 2”
Надійна забудова
Сучасна архітектура
Продумане планування
Гнучкі умови оплати
#A20250Связаться с продавцом
xxx xxx xxx

