Бизнес
Вид объекта: Вторичка
Этаж: 4
Этажность: 4
Общая площадь: 73.80 м²
Площадь кухни: 8 м²
Класс жилья: Эконом
Количество комнат: 3 комнаты
Отопление: Централизованное
Ремонт: Жилое состояние
Меблирование: Да
Бытовая техника: Плита
Комфорт: Гостевой паркинг
Коммуникации: Газ, Центральный водопровод
Инфраструктура (до 500 метров): Школа, Детский сад, Магазин, киоск, Супермаркет, ТРЦ, Ресторан, кафе
Описание
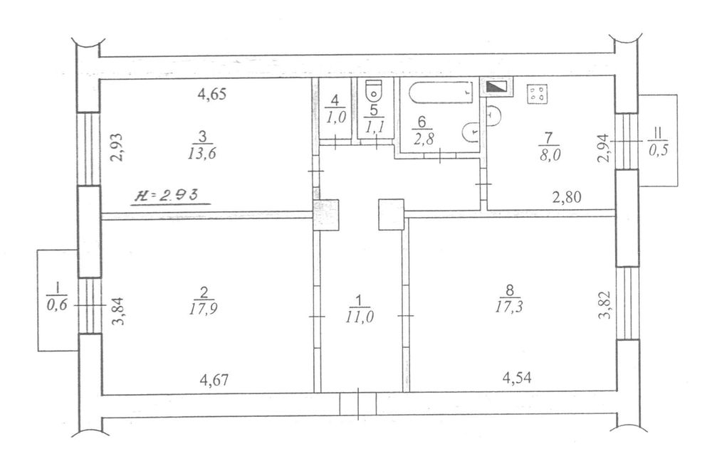
Продаж 3-кімнатної квартири, 97 Квартал, пр. Університетський (раніше пр. Гагаріна)
Пропонуємо до Вашої уваги велику квартиру "сталінку" 4/4 поверхового будинку, розташованого в тихому дворі, з виходом на проспект.
Про об'єкт:
- загальна площа 73,8кв.м
- житлова площа 48,8кв.м.
Планування об'єкту:
- кухня 8кв.м. з виходом на балкон;
- велика зала 17,9кв.м. з виходом на балкон;
- простора спальня 17,3кв.м.
- спальня 13,6кв.м.
- сан.вузол роздільний
- кладова.
Комунікації:
- опалення центральне
- водопостачання
- газопостачання (колонка автомат)
Особливості квартири:
- тепла, затишна;
- простора, світла;
- легко переплановується;
- гарні сусіди;
- зверху техн.поверх.
Локація:
- центр міста
- розвинена інфраструктура
- зупинки міського транспорту
- магазини супермаркети та розважальні заклади
Ціна 23 000$
За будь-якими питаннями за цією або схожими пропозиціями звертайтесь за номером телефону, де вам відповість наш ріелтор.
З повагою, команда Credo!
Номер оголошення на сайті компанії: SF-2-986-383-LX.
Пропонуємо до Вашої уваги велику квартиру "сталінку" 4/4 поверхового будинку, розташованого в тихому дворі, з виходом на проспект.
Про об'єкт:
- загальна площа 73,8кв.м
- житлова площа 48,8кв.м.
Планування об'єкту:
- кухня 8кв.м. з виходом на балкон;
- велика зала 17,9кв.м. з виходом на балкон;
- простора спальня 17,3кв.м.
- спальня 13,6кв.м.
- сан.вузол роздільний
- кладова.
Комунікації:
- опалення центральне
- водопостачання
- газопостачання (колонка автомат)
Особливості квартири:
- тепла, затишна;
- простора, світла;
- легко переплановується;
- гарні сусіди;
- зверху техн.поверх.
Локація:
- центр міста
- розвинена інфраструктура
- зупинки міського транспорту
- магазини супермаркети та розважальні заклади
Ціна 23 000$
За будь-якими питаннями за цією або схожими пропозиціями звертайтесь за номером телефону, де вам відповість наш ріелтор.
З повагою, команда Credo!
Номер оголошення на сайті компанії: SF-2-986-383-LX.
ID: 856210963
Связаться с продавцом
xxx xxx xxx
Опубликовано 29 сентября 2025 г.
Продаж 3-кімнатної квартири, 97 Квартал
23 000 $
Местоположение
Кривой Рог, Саксаганский
Днепропетровская область