Перейти к основному разделу
Чат
  • Укр
  • Рус

Уведомления

Ваш профиль

Подать объявление
Продаж 3-кім квартир в новобудові в Пустомитах
Продаж 3-кім квартир в новобудові в Пустомитах
РекламироватьПоднять

Бизнес

Вид объекта: Новостройка

Без комиссии

Готов сотрудничать с риэлторами

Этаж: 2

Этажность: 6

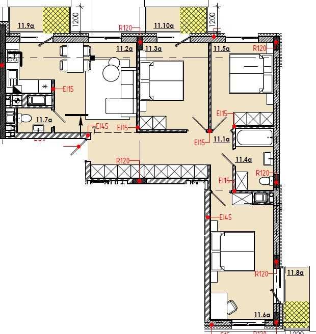
Общая площадь: 82 м²

Площадь кухни: 21 м²

Тип стен: Кирпичный

Количество комнат: 3 комнаты

Планировка: Раздельная

Санузел: Раздельный

Отопление: Индивидуальное газовое

Описание

Є розтермінування.
Від забудовника.
Продаж 3-кім квартир в новобудові в Пустомитах.
здача 4 кв 2027.
Кухня-вітальня, утеплені стіні, ліфт, не кутова, сонячна, 0-цикл, МП-вікна, стяжка, штукатурка, індивідуальне опалення (котел)
.Спальний р-н, розвинута інфраструктура, дит садочки, школа,супермаркети.
ID: 855346392

Связаться с продавцом

Остап

на OLX с июль 2015 г.

Онлайн 26 февраля 2026 г.

xxx xxx xxx

Опубликовано 27 февраля 2026 г.

Продаж 3-кім квартир в новобудові в Пустомитах

55 000 $

Местоположение

Location

Пустомыты

Львовская область

Бесплатное приложение для твоего телефона