Бизнес
Вид объекта: Новостройка
Этаж: 2
Этажность: 3
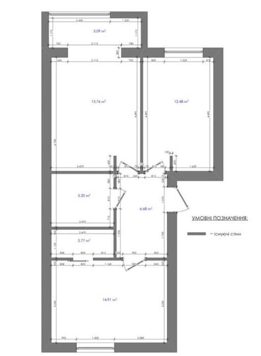
Общая площадь: 62 м²
Площадь кухни: 14 м²
Тип стен: Кирпичный
Класс жилья: Комфорт
Количество комнат: 2 комнаты
Планировка: Раздельная
Санузел: Раздельный
Отопление: Индивидуальное газовое
Ремонт: После строителей
Меблирование: Нет
Коммуникации: Асфальтированная дорога, Центральная канализация, Электричество, Вывоз отходов, Газ, Центральный водопровод
Инфраструктура (до 500 метров): Аптека, Детский сад, Парк, зелёная зона, Детская площадка, Ресторан, кафе, Школа, Магазин, киоск, Супермаркет, ТРЦ, Остановка транспорта
Описание
Продаж просторої 2х кімнатної квартири в будинку комфорт класу в Солонці!
Квартира площею 63м2 розташована на зручному 2 поверсі з 3х1
Малоквартирний будинок.
На поверсі всього дві квартири!
Має двохстороннє планування з виглядом в закритий двір комплекса і на зовні на особняки! Будинок на етапі здачі.
Встановлюються панорамні вікна з затемюючим ефектом. доробляють сходи. Кожна квартира здається з стяжками підлоги і штукатурками стін!
Автономне опалення кожної квартири. Котел входить в вартість.
До даної квартири розроблено сучасний дизайн проект.
Комплекс має закриту прибудинкову територію для своїх мешкануів з гостьовим паркінгом! Тут тихо і комфортно жити. Район забудований і обжитий! Поруч школа. садочок. магазини і зупинки транспорта! Дзвоніть!
Квартира площею 63м2 розташована на зручному 2 поверсі з 3х1
Малоквартирний будинок.
На поверсі всього дві квартири!
Має двохстороннє планування з виглядом в закритий двір комплекса і на зовні на особняки! Будинок на етапі здачі.
Встановлюються панорамні вікна з затемюючим ефектом. доробляють сходи. Кожна квартира здається з стяжками підлоги і штукатурками стін!
Автономне опалення кожної квартири. Котел входить в вартість.
До даної квартири розроблено сучасний дизайн проект.
Комплекс має закриту прибудинкову територію для своїх мешкануів з гостьовим паркінгом! Тут тихо і комфортно жити. Район забудований і обжитий! Поруч школа. садочок. магазини і зупинки транспорта! Дзвоніть!
ID: 899774724
Связаться с продавцом
xxx xxx xxx

