Бизнес
Вид объекта: Новостройка
Без комиссии
Готов сотрудничать с риэлторами
Тип дома: Жилой фонд от 2021 р.
Название ЖК: SOUL PARK
Этаж: 4
Этажность: 6
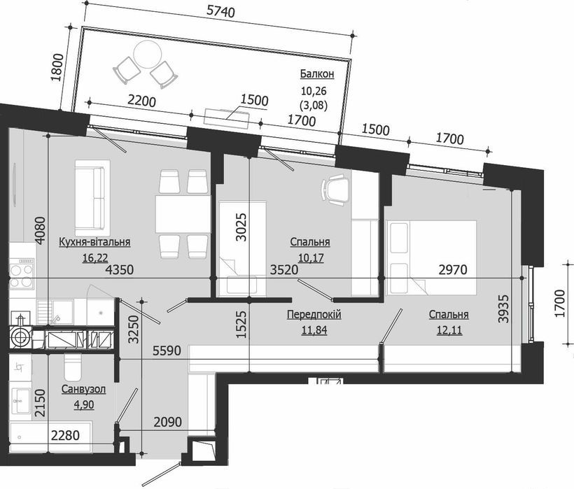
Общая площадь: 58.32 м²
Тип сделки: От застройщика, Рассрочка от застройщика
Площадь кухни: 16 м²
Тип стен: Кирпичный
Класс жилья: Бизнес
Количество комнат: 2 комнаты
Планировка: Раздельная
Санузел: Раздельный
Отопление: Индивидуальное газовое
Ремонт: Под чистовую отделку
Комфорт: Балкон, лоджия, Лифт, Подземный паркинг, Панорамные окна
Коммуникации: Асфальтированная дорога, Центральная канализация, Электричество, Вывоз отходов, Газ, Центральный водопровод
Инфраструктура (до 500 метров): Отделение банка, банкомат, Аптека, Больница, поликлиника, Детский сад, Рынок, Парк, зелёная зона, Детская площадка, Отделение почты, Ресторан, кафе, Школа, Магазин, киоск, Супермаркет, ТРЦ, Остановка транспорта
Ландшафт (до 1 км.): Лес, Парк
Описание
SOUL PARK - це скандинавська архітектура, квартири з терасами та патіо, представницькі поверхи з персональним доступом тільки для власників, комерція понад 2100 м² де розмістяться магазини, кафе, ресторани, фітнес-зали, сервісні центри, офісні приміщення, а також школа розташована у окремій будівлі площею 1600 м².
Квартири представлені напряму від забудовника.
Связаться с продавцом
xxx xxx xxx

