Бизнес
Вид объекта: Вторичка
Без комиссии
Готов сотрудничать с риэлторами
Тип дома: Царский дом
Этаж: 1
Этажность: 5
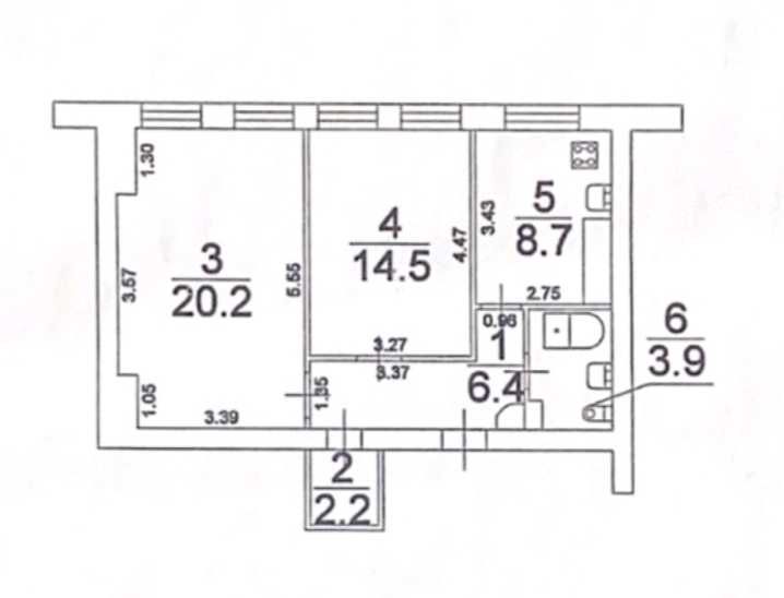
Общая площадь: 56 м²
Площадь кухни: 9 м²
Тип стен: Кирпичный
Класс жилья: Эконом
Количество комнат: 1 комната
Планировка: Раздельная
Санузел: Смежный
Отопление: Централизованное
Ремонт: Косметический ремонт
Меблирование: Да
Бытовая техника: Холодильник, Плита, Стиральная машина
Мультимедиа: Кабельное, цифровое ТВ, Телевизор, Wi-Fi
Комфорт: Ванна, Мебель на кухне, Решетки на окнах
Коммуникации: Асфальтированная дорога, Центральная канализация, Электричество, Вывоз отходов, Газ, Центральный водопровод
Инфраструктура (до 500 метров): Отделение банка, банкомат, Центр города, Аптека, Больница, поликлиника, Рынок, Метро, Парк, зелёная зона, Детская площадка, Отделение почты, Ресторан, кафе, Школа, Магазин, киоск, Супермаркет, ТРЦ, Остановка транспорта
Ландшафт (до 1 км.): Парк
Описание
Квартира розташована в якісному дореволюційному будинку на безпечному 1/5 поверсі з товстими цегляними стінами, Н=3.2м. Загальна площа 56 кв.м, дві роздільні кімнати 20.2 та 14.5 кв.м, кухня 8.7 кв.м. В квартирі газова плита. Є тамбур на дві квартири.
Охайний під"їзд. Вікна виходять на затишний скверик. Поруч знаходиться інститут ортопедії, Львівсьска площа, піший хід до метро Золоті Ворота, до цирку, 4 зупинки до Майдану Незалежності.
Розташування будинку є чудовим варіантом як для проживання, так і гарним варіантом для інвестиції ( довгострокова оренда, подобова оренда).Також гарний варіант для влаштування офісу. Поруч з будинком ідсутні об"єкти стратегічного значення, тому локація є однією з самих безпечних.
Ціна без комісії для покупця 95.000 євро ( або 110.000 доларів)
Дзвоніть, надам всю інформацію та оперативно організую перегляд. Відеоогляд по запиту.
З повагою, Ольга
Связаться с продавцом
xxx xxx xxx

