Бизнес
Вид объекта: Новостройка
Без комиссии
Подходит под требования єОселя
Тип дома: Жилой фонд от 2021 р.
Название ЖК: ЖК Lucky Land
Этаж: 9
Год ввода в эксплуатацию: 2 026
Этажность: 13
Общая площадь: 30.44 м²
Тип сделки: От застройщика
Площадь кухни: 5 м²
Тип стен: Монолитный
Класс жилья: Комфорт
Количество комнат: 1 комната
Планировка: Студия
Санузел: Смежный
Отопление: Индивидуальное газовое
Ремонт: После строителей
Меблирование: Нет
Комфорт: Лифт, Грузовой лифт
Коммуникации: Асфальтированная дорога, Центральная канализация, Электричество, Центральный водопровод
Инфраструктура (до 500 метров): Детский сад, Метро, Парк, зелёная зона, Детская площадка, Школа, Магазин, киоск, Супермаркет, ТРЦ, Остановка транспорта
Ландшафт (до 1 км.): Лес
Описание
Продаж 1-кімнатної квартири 30.44 м2 у сучасному ЖК Lucky Land,
Святошинський район, вул. Берковецька.
Підходить під вимоги Є Оселя !
Можливість розтермінування!
Характеристики:
• Поверх: 8
• Будинок: №6
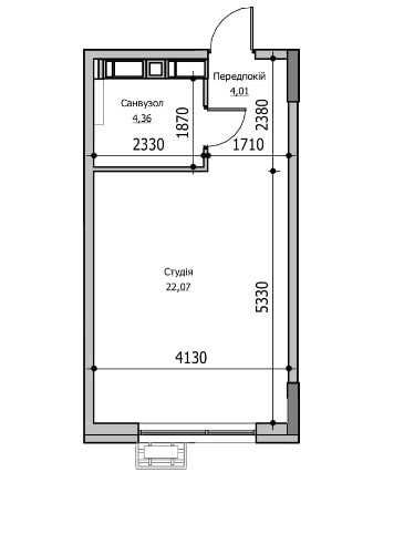
• Загальна площа: 30.44 м2
• Кімната студія: 22.07 м2
• Санвузол: 4,36 м2
• Передпокій: 4.01 м2
Стан від забудовника:
• Стяжка підлоги
• Металеві вхідні двері
• Енергозберігаючі металопластикові вікна
• Утеплений будинок
• Електрокотел у квартирі
• Всі комунікації підключені
Інфраструктура поруч:
ТРЦ Lavina Mall, Ашан, Сільпо, Епіцентр, кафе, ресторани, фітнес-клуби, медичні заклади, школи та дитячі садки.
Транспорт:
Метро Академмістечко — 7 хв, Сирець — 10 хв транспортом.
Зручний виїзд на Кільцеву дорогу та вул. Стеценка.
Ідеально для проживання або інвестиції.
Телефонуйте для перегляду. Маємо для Вас ще пропозиції !
Связаться с продавцом
xxx xxx xxx

