Бизнес
Продажа от застройщика
Без комиссии
Расстояние до ближайшего города: В городе
Этажность: 2
Общая площадь: 128 м²
Количество комнат: 3
Площадь участка: 1.50 соток
Тип дома: Таунхаус
Кадастровый номер: ##############
Год постройки / сдачи: После 2015
Тип стен: Кирпичный
Внешнее утепление стен: Пенопласт
Тип кровли: Металлочерепица
Санузел: 2 и более
Отопление: Индивидуальное электро
Ремонт: Под чистовую отделку
Меблирование: Нет
Бытовая техника: Без бытовой техники
Мультимедиа: Без мультимедиа
Комфорт: Автоматические ворота, Балкон, Ванна, Гараж, Подогрев пола, Душевая кабина, Терраса
Коммуникации: Асфальтированная дорога, Электричество, Вывоз отходов, Канализация септик, Скважина
Инфраструктура (до 500 метров): Аптека, Больница, поликлиника, Остановка транспорта, Детский сад, Парк, зелёная зона, Детская площадка, Отделение почты, Ресторан, кафе, Школа, Магазин, киоск, Супермаркет, ТРЦ
Ландшафт (до 1 км.): Парк, Река
Описание
м. Ужгород, Компотний р-он, тиха вулиця, близько до центру та розвиненої інфраструктури.
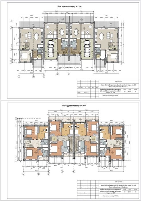
# Будівництво та комунікації:
- Стіни: цегла 38 см + утеплення пінопластом 10 см
- Перекриття: монолітне (максимальна міцність і надійність)
- Висота стель - 2,85 м
- Внутрішнє оздоблення : чистова штукатурка стін та стяжка підлог ;
- Міжбудинкова шумоізоляція ;
- Вікна: VEKA, 8-камерні — найвищий рівень енергоефективності серед пластикових систем
- Опалення: індивідуальне електричне + тепла водяна підлога по всьому будинку
- Водопостачання: власна свердловина для кожного таунхауса
- Каналізація: сучасні біо-септики
- Електропостачання: 16 кВт на кожен будинок
# Середні таунхауси – 128 м²
Вартість: 125 000 $
Ціна: 976 $/м²
- 2 поверхи
- 3 спальні (дві з виходом на балкон 11 м² з видом на двір)
- Просторий санвузол із балконом на вулицю
- Гардеробна
- Кухня-студія + вітальня з виходом на терасу
- Гостьовий санвузол
- Передпокій
- Вбудований гараж з автоматичними воротами
- 1,5 сотки приватизованої землі
# Бокові таунхауси – 123 м²
Вартість: 130 000 $
Ціна: 1056 $/м²
- 2 поверхи
- 3 спальні (дві з виходом на балкон 11 м², одна з власним гардеробом і санвузлом + балкон на вулицю)
- Кухня-студія + вітальня з виходом на терасу
- Гостьовий санвузол
- Передпокій
- 2,5 сотки приватизованої землі з можливістю облаштування автонавіса чи гаража
# Спільні переваги:
- Паркомісце для 2 авто біля кожного таунхауса
- Забудовником запланований комплексний благоустрій території (озеленення + бруківка, як на візуалізації) Завершення будівельних робіт – 4 квартал 2025 року.
- Балкони й тераси для відпочинку
- Власні приватизовані ділянки (1,5–2,5 сотки)
- Сучасна класика в архітектурі та якісні матеріали будівництва
# Тип угоди та умови продажу
– Здача в експлуатацію відразу на покупця без зайвих витрат
# Розташування:
тихий, затишний район із відмінною інфраструктурою (5 хвилин до центру міста)
Чому саме цей дім?
– Це більше, ніж житло.
– Це простір, де панує свобода та затишок.
– Де діти граються у власному дворі, а ви насолоджуєтесь кавою на терасі.
– Де кожна деталь продумана для вашого комфорту.
# Тип договору:
Перша реєстрація права власності в Державному реєстрі речових прав на нерухоме майно.
– Оплата послуг нотаріуса та реєстратора здійснюється окремо.
Для деталей та перегляду:
Телефон / Viber / WhatsApp / Telegram
05*********11
Сертифікований фахівець з нерухомості Богдан Лазур
Будинки, які дарують тепло та гармонію з перших хвилин.
Можливо, саме цей чекає на вас!
Связаться с продавцом
xxx xxx xxx
ПРОДАЮТЬСЯ ТАНХАУСИ у стилі сучасна класика м. Ужгород, Компотний р-н
125 000 $
Местоположение
Ужгород
Закарпатская область
