Бизнес
Продажа от застройщика
Без комиссии
Расстояние до ближайшего города: В городе
Этажность: 2
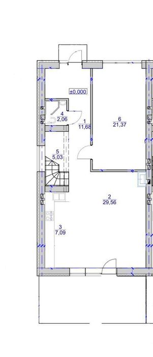
Общая площадь: 154 м²
Количество комнат: 3
Площадь участка: 2.50 соток
Тип дома: Таунхаус
Год постройки / сдачи: На этапе строительства
Тип стен: Кирпичный
Внешнее утепление стен: Пенопласт
Тип кровли: Металлошифер
Санузел: Раздельный
Отопление: Индивидуальное газовое
Ремонт: После строителей
Меблирование: Нет
Бытовая техника: Без бытовой техники
Мультимедиа: Без мультимедиа
Коммуникации: Центральная канализация, Электричество, Газ, Центральный водопровод
Инфраструктура (до 500 метров): Детский сад, Парк, зелёная зона, Детская площадка, Школа
Ландшафт (до 1 км.): Озеро, Река
Описание
Продається Таунхаус
Площа 154 м2 Ділянка 2.5 сотих
Ви отримаєте власний будинок з якісним будівництвом: -Фундамент ( висотою 170 см ) цементно стрічковий ,армований
-Гідроізоляція фундаменту
-Фундамент утеплюється екструдованим пінопластом
-Висота стелі становить 3 метри
-Закриті передні та задні двори (висотою 180 см )
-Цегляне будівництво (М125 коломийська)
-Панельне перекриття між перший та другим поверхом
-Висота парка 180
-Потужність світла 8 кіловат (3-фази день-ніч )
-Задня тераса викладена бруківкою
-Скляний дашок на вхідні групі
-Фасад утеплений пінопластом 10 см - 35 щільність з декором клінкерноі плитки
-Автоматичні гаражні ворота та розсувні ворота при вїзді в будинок
-Автоматичні книжкові ворота у внутрішніх будинках
-Вікна з потрійним склопакетом, 6-тикамерні енергозберігаючі
-Дах металопрофіль
-Якісні вхідні двері
-Монолітні сходи на 2-ий поверх
-Комунікації Газ , вода , світло
Для огляду телефонуйте!
Площа 154 м2 Ділянка 2.5 сотих
Ви отримаєте власний будинок з якісним будівництвом: -Фундамент ( висотою 170 см ) цементно стрічковий ,армований
-Гідроізоляція фундаменту
-Фундамент утеплюється екструдованим пінопластом
-Висота стелі становить 3 метри
-Закриті передні та задні двори (висотою 180 см )
-Цегляне будівництво (М125 коломийська)
-Панельне перекриття між перший та другим поверхом
-Висота парка 180
-Потужність світла 8 кіловат (3-фази день-ніч )
-Задня тераса викладена бруківкою
-Скляний дашок на вхідні групі
-Фасад утеплений пінопластом 10 см - 35 щільність з декором клінкерноі плитки
-Автоматичні гаражні ворота та розсувні ворота при вїзді в будинок
-Автоматичні книжкові ворота у внутрішніх будинках
-Вікна з потрійним склопакетом, 6-тикамерні енергозберігаючі
-Дах металопрофіль
-Якісні вхідні двері
-Монолітні сходи на 2-ий поверх
-Комунікації Газ , вода , світло
Для огляду телефонуйте!
ID: 908727139
Связаться с продавцом
xxx xxx xxx
