Бизнес
Продажа от застройщика
Без комиссии
Возможность обмена
Готов сотрудничать с риэлторами
Расстояние до ближайшего города: до 5 км.
Этажность: 2
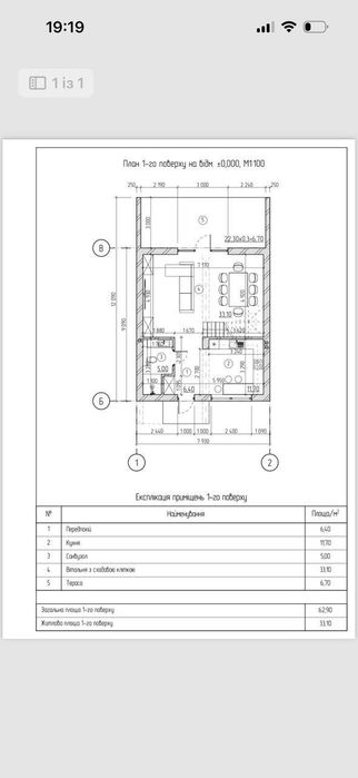
Общая площадь: 125 м²
Количество комнат: 4
Площадь участка: 2 соток
Тип дома: Таунхаус
Год постройки / сдачи: После 2015
Тип стен: Монолитный
Внешнее утепление стен: Пенопласт
Тип кровли: Металлические листы
Санузел: 2 и более
Отопление: Индивидуальное электро
Ремонт: Под чистовую отделку
Меблирование: Нет
Бытовая техника: Без бытовой техники
Мультимедиа: Без мультимедиа
Коммуникации: Электричество, Вывоз отходов, Канализация септик, Скважина
Инфраструктура (до 500 метров): Аптека, Детский сад, Рынок, Парк, зелёная зона, Бювет, Ресторан, кафе, Школа, Магазин, киоск, Супермаркет, ТРЦ, Остановка транспорта
Описание
Просторий та стильний таунхаус у новому житловому комплексі, завершення будівництва через 3 місяці.
Площа: 125 м² + тераса 15 м²
Земельна ділянка: 1,5 сотки
Підключені комунікації: електрика, септик, індивідуальна свердловина
Матеріали:
– Керамоблок 250 мм
– Утеплення фасаду 100 мм пінопласту
– Покрівля утеплена 200 мм мінвати
– Монолітне перекриття, сходи на арматурі в 2 сітки
Планування: стандартне, 2 санвузли
Закрита територія, дитячий майданчик, чудова локація.
youtu.be/XRC4OkqH0do?si=9wettgxi6ub2wjIz
Телефонуйте для деталей та перегляду!
Связаться с продавцом
xxx xxx xxx
Продається таунхаус 125 м² у сучасному комплексі | 3 км від Годилівськ
77 000 $
Местоположение
Черновцы
Черновицкая область

