Бизнес
Вид объекта: Новостройка
Название ЖК: 44 AVENUE
Этаж: 3
Этажность: 7
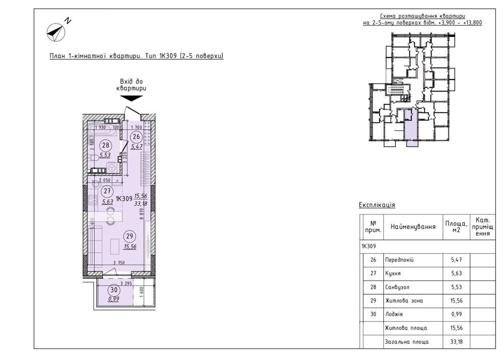
Общая площадь: 33 м²
Площадь кухни: 6 м²
Количество комнат: 1 комната
Санузел: Смежный
Меблирование: Нет
Описание
Продається однокімнатна квартира ЖК 44 AVENUE, м. Ужгород, вул. Мукачівська 44.
44 AVENUE – розміщений на території 1 гектару. Це перший житловий комплекс в Україні, що підтримує підключення до сонячних панелей. Також завдяки системі “розумний дім” ви зможете керувати опаленням, домофоном і шлагбаумом прямо зі смартфона. Буде встановлено безшумний ліфт і відеонагляд для забезпечення вашого комфорту та безпеки.
Жити в 44 AVENUE – означає бути в центрі подій. ЖК розташований у самому серці міста, поруч із історичними пам’ятками, мальовничою набережною та престижними закладами освіти. У пішій доступності – школи, садочки, лікерні, фітнес-зал, магазини та кафе. Також на території ЖК є сучасне бомбосховище та підземний паркінг. Ви отримуєте не житло, а унікальну атмосферу міського життя з доступом до всього необхідного.
Будівництво 1-2 черги розпочато.
Здача об’єкту в експлуатацію 4-квартал 2026 р.
Характеристика будівництва:
Зовні будинок 7-поверховий, побудований по монолітно-каркасній технології з використанням червоної цегли, фасад вентильований із травертину, утепленний мінватою, панорамні енергозберігаючі вікна.
1 поверх – комерція, 2-7 житлові.
Всередині забудовником надається чистова стяжка, електрокотел + батареї, стіни поштукатурені, розведена сантехніка, заведений силовий кабель без розводки, якісні вхідні двері.
До вашої уваги пропонуємо квартиру площею 33,18 м.кв.
Також під час будівництва є можливість змінити планування.
Ціна 1250 Дол м.кв.
Перший початковий внесок 30%, розтермінування надається до здачі об’єкту в експлуатацію.
Діють знижки:
10% – при внеску 100% оплаті .
7% – при внеску 70%.
5% – при внеску 50%.
Також додатково не залежно від внеску діють знижки:
3% для ЗСУ, ВПО, сім’ї героїв.
2% для медиків.
Продаж від представника забудовника без комісії агентству.
Код: 35816
44 AVENUE – розміщений на території 1 гектару. Це перший житловий комплекс в Україні, що підтримує підключення до сонячних панелей. Також завдяки системі “розумний дім” ви зможете керувати опаленням, домофоном і шлагбаумом прямо зі смартфона. Буде встановлено безшумний ліфт і відеонагляд для забезпечення вашого комфорту та безпеки.
Жити в 44 AVENUE – означає бути в центрі подій. ЖК розташований у самому серці міста, поруч із історичними пам’ятками, мальовничою набережною та престижними закладами освіти. У пішій доступності – школи, садочки, лікерні, фітнес-зал, магазини та кафе. Також на території ЖК є сучасне бомбосховище та підземний паркінг. Ви отримуєте не житло, а унікальну атмосферу міського життя з доступом до всього необхідного.
Будівництво 1-2 черги розпочато.
Здача об’єкту в експлуатацію 4-квартал 2026 р.
Характеристика будівництва:
Зовні будинок 7-поверховий, побудований по монолітно-каркасній технології з використанням червоної цегли, фасад вентильований із травертину, утепленний мінватою, панорамні енергозберігаючі вікна.
1 поверх – комерція, 2-7 житлові.
Всередині забудовником надається чистова стяжка, електрокотел + батареї, стіни поштукатурені, розведена сантехніка, заведений силовий кабель без розводки, якісні вхідні двері.
До вашої уваги пропонуємо квартиру площею 33,18 м.кв.
Також під час будівництва є можливість змінити планування.
Ціна 1250 Дол м.кв.
Перший початковий внесок 30%, розтермінування надається до здачі об’єкту в експлуатацію.
Діють знижки:
10% – при внеску 100% оплаті .
7% – при внеску 70%.
5% – при внеску 50%.
Також додатково не залежно від внеску діють знижки:
3% для ЗСУ, ВПО, сім’ї героїв.
2% для медиків.
Продаж від представника забудовника без комісії агентству.
Код: 35816
ID: 917152683
Связаться с продавцом
xxx xxx xxx
Опубликовано 13 марта 2026 г.
Продається однокімнатна квартира, ЖК 44 AVENUE Код: 35816
41 250 $
Местоположение
Ужгород
Закарпатская область
