Бизнес
Расстояние до ближайшего города: до 5 км.
Этажность: 2
Общая площадь: 125 м²
Количество комнат: 4
Площадь участка: 1.50 соток
Тип дома: Таунхаус
Год постройки / сдачи: После 2015
Тип стен: Кирпичный
Внешнее утепление стен: Пенопласт
Тип кровли: Металлические листы
Санузел: Раздельный
Отопление: Индивидуальное электро
Ремонт: После строителей
Меблирование: Нет
Описание
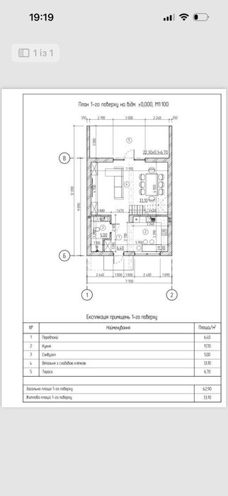
Продається крайній таунхаус площею 120 квадратних метрів всього за п’ять кілометрів від торгового центру Майдан. Будинок повністю готовий та зданий в експлуатацію, комплекс облаштований власними комунікаціями. Є каналізація септик, світло шістнадцять кіловат три фази, власний колодязь. Земельна ділянка півтори сотки.
У будинку чотири просторі кімнати, два санвузли, два балкони і тераса. Передбачене місце для каміна. Стіни з півтора блока з утепленням пінопластом десять сантиметрів, встановлені якісні вікна.
Таунхаус поєднує переваги заміського життя з комфортом міста. Це зручний варіант для родини, яка цінує простір, тишу та водночас хоче залишатися поруч з міською інфраструктурою.
У будинку чотири просторі кімнати, два санвузли, два балкони і тераса. Передбачене місце для каміна. Стіни з півтора блока з утепленням пінопластом десять сантиметрів, встановлені якісні вікна.
Таунхаус поєднує переваги заміського життя з комфортом міста. Це зручний варіант для родини, яка цінує простір, тишу та водночас хоче залишатися поруч з міською інфраструктурою.
ID: 896661845
Связаться с продавцом
xxx xxx xxx
Опубликовано 03 января 2026 г.
Продається крайній таунхаус 5 км від майдану.
85 000 $
Местоположение
Черновцы
Черновицкая область

