Бизнес
Этажность: 2
Общая площадь: 134.15 м²
Количество комнат: 4
Площадь участка: 0.03 соток
Тип дома: Коттедж
Описание
Продаж
Продається двоповерховий котедж
Смт. Сокільники по вул. Мирослава Павлика
Загальна площа котеджу 134,15 кВ
Площа ділянки 0,0324 соток
Простір в якому поєднано усе найкраще!
Котедж буде введений в експлуатацію грудень 2025 року
Стіна між сусідами 90 см
Висота першого поверху 3.3 м
Другого поверху 3.1м
Алюмінієві вікна та вхідні двері двокамерні
Склопакети 8-16-4-16-4
Газ
Централізоване водопостачання і каналізація
Електроенергія -15 кВТ
Утеплення фасаду мінеральною ватою
Цегляні стіни товщиною 380мм( цегла виробник Русинія)
Мурування і штукатурення все на вапні
Дах мембрана 1,5
Утеплювач 250 мм
Планування:
Перший поверх
Коридор- 10,66 кВ
Пральня-4.63 кВ
Санвузол- 3.70кв
Кладовище - 2.32 кВ
Кухня - їдальня - 11.45 кВ
Кабінет- 10.08кв
Вітальня-20.79кв
Кладова- 2.02кв
68.65кв
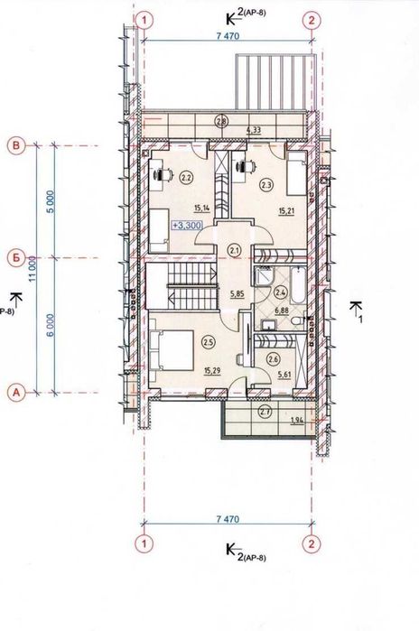
Другий поверх:
Коридор- 5.85кв
Спальня- 15.14 кВ
Дитяча -15.21кв
Ванна- 6.88кв
Спальня-16.29кв
Гардеробна- 5.61кв
Балкон- 1.94кв
Лоджія- 2.60кв
68.52кв
Дуже затишна вуличка для проживання
Хороша транспортна розвʼязка: поруч є магазини, ресторан, аптека, автосервіс, школа, церква , озеро
ЦІна 253000$
Телефонуйте
Наталія
Продається двоповерховий котедж
Смт. Сокільники по вул. Мирослава Павлика
Загальна площа котеджу 134,15 кВ
Площа ділянки 0,0324 соток
Простір в якому поєднано усе найкраще!
Котедж буде введений в експлуатацію грудень 2025 року
Стіна між сусідами 90 см
Висота першого поверху 3.3 м
Другого поверху 3.1м
Алюмінієві вікна та вхідні двері двокамерні
Склопакети 8-16-4-16-4
Газ
Централізоване водопостачання і каналізація
Електроенергія -15 кВТ
Утеплення фасаду мінеральною ватою
Цегляні стіни товщиною 380мм( цегла виробник Русинія)
Мурування і штукатурення все на вапні
Дах мембрана 1,5
Утеплювач 250 мм
Планування:
Перший поверх
Коридор- 10,66 кВ
Пральня-4.63 кВ
Санвузол- 3.70кв
Кладовище - 2.32 кВ
Кухня - їдальня - 11.45 кВ
Кабінет- 10.08кв
Вітальня-20.79кв
Кладова- 2.02кв
68.65кв
Другий поверх:
Коридор- 5.85кв
Спальня- 15.14 кВ
Дитяча -15.21кв
Ванна- 6.88кв
Спальня-16.29кв
Гардеробна- 5.61кв
Балкон- 1.94кв
Лоджія- 2.60кв
68.52кв
Дуже затишна вуличка для проживання
Хороша транспортна розвʼязка: поруч є магазини, ресторан, аптека, автосервіс, школа, церква , озеро
ЦІна 253000$
Телефонуйте
Наталія
ID: 903427890
Связаться с продавцом
xxx xxx xxx
Опубликовано 09 февраля 2026 г.
Продається котедж Сокільники
253 000 $
Местоположение
Сокольники
Львовская область