Бизнес
Без комиссии
Расстояние до ближайшего города: до 5 км.
Этажность: 1
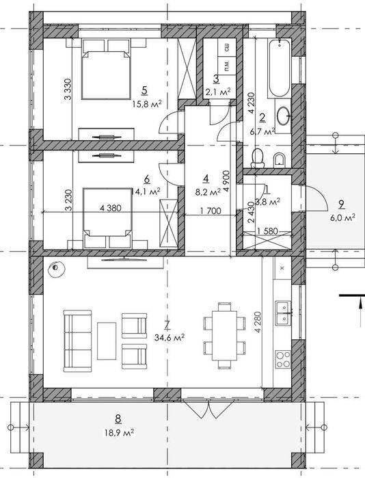
Общая площадь: 92 м²
Количество комнат: 3
Площадь участка: 5.60 соток
Тип дома: Коттедж
Год постройки / сдачи: После 2015
Тип стен: Монолитный
Внешнее утепление стен: Базальт
Тип кровли: Металлические листы
Санузел: Смежный
Отопление: Индивидуальное электро
Ремонт: Евроремонт
Меблирование: Нет
Комфорт: Забор, ограждение, Подогрев пола, Душевая кабина, Терраса
Коммуникации: Асфальтированная дорога, Электричество, Канализация септик, Центральный водопровод
Инфраструктура (до 500 метров): Детский сад, Парк, зелёная зона, Отделение почты, Школа, Магазин, киоск, Остановка транспорта
Ландшафт (до 1 км.): Холмы, Река
Описание
Одноповерховий будинок в унікальному житловому комплексі. ЖК знаходиться в мальовничій місцевості, де поруч ліс, річка, Вовчинецькі пагорби. Відстань до Івано Франківська 2,5 км або 6 км до самісінького центра міста. Школи та дитячий садочок в радіусі кілометра.
Площа будинку 92 м2
2 окремі спальні, кухня-студія (висота стелі до 6 м!), санвузол та техприміщення. Є кондиціонер та підігрів підлоги по усьому будинку. Підключений інтернет. Готовність ремонту 80%
Площа ділянки 5,6 сотих, є тераса
Будинок в стилі «Барнхаус», фасад будинку оздоблений словацьким клікфальцем у кольорі «графіт» та українським планкеном з смереки. Простора тераса, що викладена з модрини, виходить на схід. Будинок під’єднаний до електромережі 10 кВт та міського водопроводу. У будинках встановлено електричні котли, що в поєднанні з двозонними лічильниками є найдешевшим варіантом опалення. В якості альтернативного джерела опалення закладено комунікації під твердопаливну піч-камін. Вікна семикамерні із тришаровим склопакетом, що вкритий УФ-відбиваючим напиленням.
Пішохідні зони викладені бруківкою, а проїжджі – асфальтом. Автоматичні ворота, паркан, відеонагляд і освітлення території.
*Технологія будівництва – залізобетонний каркас на монолітній залізобетонній плиті, що спирається на бетонні колони з нижнім розширенням. Простір між колонами заповнений газобетонними блоками щільністю 300 кг/м.куб та утеплений базальтовою ватом 100 мм. Окрім якісних паро- та вітробар’єрних мембран змонтовано москітну сітку по стінах від комах та залізну сітку попри фундамент від гризунів. Інженерні комунікації прокладено під землею, виконано дренажні роботи по водовідведенню дощової води за територію комплексу.
Площа будинку 92 м2
2 окремі спальні, кухня-студія (висота стелі до 6 м!), санвузол та техприміщення. Є кондиціонер та підігрів підлоги по усьому будинку. Підключений інтернет. Готовність ремонту 80%
Площа ділянки 5,6 сотих, є тераса
Будинок в стилі «Барнхаус», фасад будинку оздоблений словацьким клікфальцем у кольорі «графіт» та українським планкеном з смереки. Простора тераса, що викладена з модрини, виходить на схід. Будинок під’єднаний до електромережі 10 кВт та міського водопроводу. У будинках встановлено електричні котли, що в поєднанні з двозонними лічильниками є найдешевшим варіантом опалення. В якості альтернативного джерела опалення закладено комунікації під твердопаливну піч-камін. Вікна семикамерні із тришаровим склопакетом, що вкритий УФ-відбиваючим напиленням.
Пішохідні зони викладені бруківкою, а проїжджі – асфальтом. Автоматичні ворота, паркан, відеонагляд і освітлення території.
*Технологія будівництва – залізобетонний каркас на монолітній залізобетонній плиті, що спирається на бетонні колони з нижнім розширенням. Простір між колонами заповнений газобетонними блоками щільністю 300 кг/м.куб та утеплений базальтовою ватом 100 мм. Окрім якісних паро- та вітробар’єрних мембран змонтовано москітну сітку по стінах від комах та залізну сітку попри фундамент від гризунів. Інженерні комунікації прокладено під землею, виконано дренажні роботи по водовідведенню дощової води за територію комплексу.
ID: 912702922
Связаться с продавцом
xxx xxx xxx
