Бизнес
Вид объекта: Новостройка
Готов сотрудничать с риэлторами
Тип дома: Жилой фонд от 2021 р.
Название ЖК: Пори року
Этаж: 2
Этажность: 3
Общая площадь: 110.70 м²
Площадь кухни: 34.10 м²
Количество комнат: 3 комнаты
Планировка: Раздельная
Санузел: 2 и более
Меблирование: Нет
Комфорт: Балкон, лоджия, Подогрев полов, Панорамные окна
Описание
Продаж 3-кімнатної квартири в ЖК "Пори року"
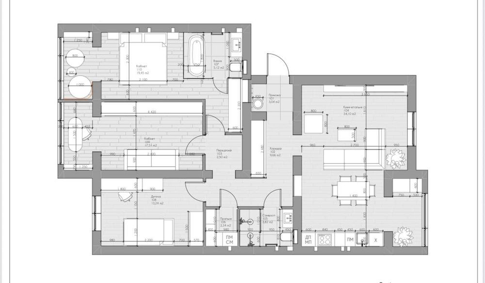
Продається простора 3-кімнатна квартира площею 105,7 м² в сучасному ЖК "Пори року" закритого типу, що знаходиться в селі Солонка на вулиці Орлика, 51.
Квартира розташована на 2-му поверсі.
Основні переваги квартири:
Панорамні вікна та три балкони, які забезпечують багато світла.
Два санвузли: гостьовий та ще один у спальні.
Простора кухня-вітальня (34,10 м²).
Система водяної теплої підлоги по всій квартирі та підлогові конвектори.
Окрема бойлерна для пральної та сушильної машин.
Готовий дизайнерський проєкт у подарунок.
Квартира підготовлена до ремонту. Залиття стяжки від забудовника можна узгодити у зручний для вас час.
Планування квартири:
Спальня господарів з власним санвузлом.
Дві окремі кімнати, які можна використовувати як дитячі або кабінет.
Гостьовий санвузол з душем.
Кухня-вітальня.
Квартира підготовлена до фінальних робіт: усі необхідні виводи для сантехніки (водопровід, каналізація) вже зроблені у ванній кімнаті та кухні.
Є відеоогляд. Зателефонуйте, щоб домовитися про перегляд.
Продається простора 3-кімнатна квартира площею 105,7 м² в сучасному ЖК "Пори року" закритого типу, що знаходиться в селі Солонка на вулиці Орлика, 51.
Квартира розташована на 2-му поверсі.
Основні переваги квартири:
Панорамні вікна та три балкони, які забезпечують багато світла.
Два санвузли: гостьовий та ще один у спальні.
Простора кухня-вітальня (34,10 м²).
Система водяної теплої підлоги по всій квартирі та підлогові конвектори.
Окрема бойлерна для пральної та сушильної машин.
Готовий дизайнерський проєкт у подарунок.
Квартира підготовлена до ремонту. Залиття стяжки від забудовника можна узгодити у зручний для вас час.
Планування квартири:
Спальня господарів з власним санвузлом.
Дві окремі кімнати, які можна використовувати як дитячі або кабінет.
Гостьовий санвузол з душем.
Кухня-вітальня.
Квартира підготовлена до фінальних робіт: усі необхідні виводи для сантехніки (водопровід, каналізація) вже зроблені у ванній кімнаті та кухні.
Є відеоогляд. Зателефонуйте, щоб домовитися про перегляд.
ID: 899862568
Связаться с продавцом
xxx xxx xxx

