Бизнес
Вид объекта: Новостройка
Название ЖК: Патріотика
Этаж: 25
Этажность: 25
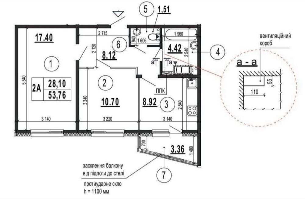
Общая площадь: 54 м²
Площадь кухни: 9 м²
Класс жилья: Комфорт
Количество комнат: 2 комнаты
Описание
Продається видова 2-кімнатна квартира в новобудові, 25 поверх, ЖК Патріотика, Синевир 23
В будинку створений кооператив, здійснюється активна добудова, запланована дата введення в експлуатацію кінець 3 кварталу 2025р.
Супер локація, біля будинку невелике озеро, через дорогу багато великих озер де планується будівництво ландшафтного парку та інших місць відпочинку.
- квартира видова, вигляд на озера, в сторону Епіцентра;
- далі йдуть великі магазини Метро, висотної забудови перед вікнами не буде.
- будинок утеплений вентильованим фасадом.
- продаж по переуступці.
- всі внески в кооператив сплачені, додаткових витрат не буде.
В наявності є практично усі варіанти…
В будинку створений кооператив, здійснюється активна добудова, запланована дата введення в експлуатацію кінець 3 кварталу 2025р.
Супер локація, біля будинку невелике озеро, через дорогу багато великих озер де планується будівництво ландшафтного парку та інших місць відпочинку.
- квартира видова, вигляд на озера, в сторону Епіцентра;
- далі йдуть великі магазини Метро, висотної забудови перед вікнами не буде.
- будинок утеплений вентильованим фасадом.
- продаж по переуступці.
- всі внески в кооператив сплачені, додаткових витрат не буде.
В наявності є практично усі варіанти…
ID: 891915391
Связаться с продавцом
xxx xxx xxx

