Бизнес
Расстояние до ближайшего города: до 5 км.
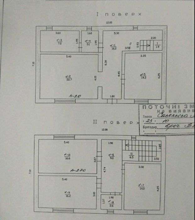
Этажность: 2
Общая площадь: 130 м²
Количество комнат: 4
Площадь участка: 5 соток
Тип дома: Дом
Тип стен: Другое
Внешнее утепление стен: Пенопласт
Тип кровли: Металлошифер
Санузел: Смежный
Отопление: Индивидуальное газовое
Ремонт: Евроремонт
Меблирование: Да
Бытовая техника: Духовой шкаф, Плита, Стиральная машина
Комфорт: Беседка, мангал, Подсобные помещения, Кондиционер, Ванна, Забор, ограждение, Гараж, Сад, огород
Коммуникации: Асфальтированная дорога, Электричество, Вывоз отходов, Газ, Центральный водопровод
Инфраструктура (до 500 метров): Аптека, Больница, поликлиника, Детский сад, Детская площадка, Отделение почты, Школа, Магазин, киоск, Супермаркет, ТРЦ, Остановка транспорта
Ландшафт (до 1 км.): Море
Описание
Участок 5 соток земли, правильная форма, огорожен по периметру забором,ландшафтный дизайн,фруктовые деревья,двор забетонирован, улица асфальтирована 2 линия от трассы. Есть гараж.
В доме 2 этажа:
1-й этаж- кухня студия 22,7 кв.м , коридор 16,2 кв.м, гостевая комната 14,2 кв.м,санузел 7 кв.м, котельная 3,1 кв., лестничный пролет 8,4 кв.м.
2-й этаж- 3 спальни 14/16,2/16,6 кв.м, коридор 9 кв., санузел 2,6 кв.м.
Отопление газовое. Есть бойлер 80 л.
Дом расположен в непосредственной близости к морю 15 мин пешком. Очень уютный и спокойный район.
Звоните, организуем показ!
Связаться с продавцом
xxx xxx xxx

