Бизнес
Вид объекта: Вторичка
Этаж: 1
Этажность: 5
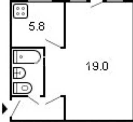
Общая площадь: 31 м²
Площадь кухни: 6 м²
Количество комнат: 1 комната
Планировка: Раздельная
Санузел: Смежный
Отопление: Централизованное
Ремонт: Жилое состояние
Инфраструктура (до 500 метров): Отделение банка, банкомат, Детский сад, Отделение почты, Школа, Магазин, киоск, Супермаркет, ТРЦ, Остановка транспорта
Описание
Код объекта: 386207
Продам однокомнатную квартиру на Черемушках, ул. Инглези.
Жилое состояние, металлопластиковые окна, на полу ламинат , кухня и санузел облицованы современной плиткой.
Просторная комната 18 кв.м. с двумя окнами и кухня 6 кв.м.
Квартира утеплена по фасаду, есть возможность сделать пристройку.
Чистая парадная на домофоне.
Рядом 96-я школа, 32-я , 46-я а также детский сад № 171, рынок Черемушки и Марка Твена.
Хорошее предложение как для жизни так и для арендного бизнеса.
Звоните!
Продам однокомнатную квартиру на Черемушках, ул. Инглези.
Жилое состояние, металлопластиковые окна, на полу ламинат , кухня и санузел облицованы современной плиткой.
Просторная комната 18 кв.м. с двумя окнами и кухня 6 кв.м.
Квартира утеплена по фасаду, есть возможность сделать пристройку.
Чистая парадная на домофоне.
Рядом 96-я школа, 32-я , 46-я а также детский сад № 171, рынок Черемушки и Марка Твена.
Хорошее предложение как для жизни так и для арендного бизнеса.
Звоните!
ID: 906950614
Связаться с продавцом
xxx xxx xxx
