Бизнес
Вид объекта: Новостройка
Тип дома: Жилой фонд от 2021 р.
Название ЖК: мира 3
Этаж: 8
Этажность: 9
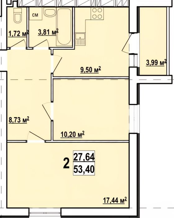
Общая площадь: 53.40 м²
Площадь кухни: 9.50 м²
Количество комнат: 2 комнаты
Планировка: Раздельная
Санузел: Смежный
Отопление: Централизованное
Ремонт: После строителей
Инфраструктура (до 500 метров): Детский сад, Школа, Отделение банка, банкомат, Остановка транспорта, Метро, Рынок, Магазин, киоск, Супермаркет, ТРЦ, Детская площадка, Аптека, Отделение почты
Описание
Комплекс ЖК Мира-3!
Продам двухкомнатную квартиру в подключённом доме, идут активно ремонты!
Документы получены!
Площадь 53, 39м2 расположена на 8/9 этаже.
Установлен счётчик на тепло.
В первичном строительном состоянии.
Показ по договорённости.
Продам двухкомнатную квартиру в подключённом доме, идут активно ремонты!
Документы получены!
Площадь 53, 39м2 расположена на 8/9 этаже.
Установлен счётчик на тепло.
В первичном строительном состоянии.
Показ по договорённости.
ID: 903260935
Связаться с продавцом
xxx xxx xxx

