Бизнес
Без комиссии
Расстояние до ближайшего города: В городе
Этажность: 2
Общая площадь: 93 м²
Количество комнат: 3
Площадь участка: 0.50 соток
Тип дома: Коттедж
Внешнее утепление стен: Пенопласт
Тип кровли: Металлочерепица
Санузел: 2 и более
Отопление: Индивидуальное газовое
Ремонт: После строителей
Меблирование: Нет
Коммуникации: Асфальтированная дорога, Центральная канализация, Электричество, Газ, Центральный водопровод
Инфраструктура (до 500 метров): Отделение банка, банкомат, Центр города, Аптека, Больница, поликлиника, Детский сад, Парк, зелёная зона, Отделение почты, Ресторан, кафе, Школа, Магазин, киоск, Супермаркет, ТРЦ, Остановка транспорта
Ландшафт (до 1 км.): Озеро, Парк
Описание
Компактні таунхауси в сучасному мікрорайоні "Щасливе" - це чудова альтернатива 3-кімнатній квартирі в новобудові.
Котеджі розташовані у вже забудованому масиві.
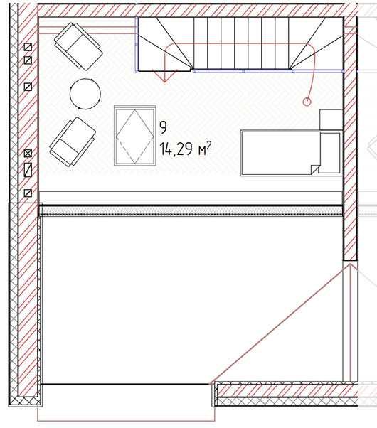
Загальна площа житла - 93м2.
Сучасне планування:
Перший поверх: кухня-студіо та санвузол.
Другий поверх: дві спальні кімнати.
Та мансарднй поверх: окрема кімната площею 17м2
Всі комунікації міські та заведені в котедж!
Чому таунхаус кращий за квартиру? Тому що, Вам не потрібно шукати де припаркувати авто, адже у Вас завжди буде власне місце перед котеджом.
Можливе РОЗТЕРМІНУВАННЯ!
Котеджі розташовані у вже забудованому масиві.
Загальна площа житла - 93м2.
Сучасне планування:
Перший поверх: кухня-студіо та санвузол.
Другий поверх: дві спальні кімнати.
Та мансарднй поверх: окрема кімната площею 17м2
Всі комунікації міські та заведені в котедж!
Чому таунхаус кращий за квартиру? Тому що, Вам не потрібно шукати де припаркувати авто, адже у Вас завжди буде власне місце перед котеджом.
Можливе РОЗТЕРМІНУВАННЯ!
ID: 903732899
Связаться с продавцом
xxx xxx xxx

