Бизнес
Продажа от застройщика
Без комиссии
Расстояние до ближайшего города: В городе
Этажность: 2
Общая площадь: 120 м²
Количество комнат: 4
Площадь участка: 2 соток
Тип дома: Дом
Год постройки / сдачи: После 2015
Тип стен: Газоблок
Внешнее утепление стен: Пенополистирол
Тип кровли: Металлочерепица
Санузел: 2 и более
Отопление: Индивидуальное газовое
Ремонт: Под чистовую отделку
Меблирование: Нет
Бытовая техника: Без бытовой техники
Мультимедиа: Скоростной интернет, Кабельное, цифровое ТВ
Комфорт: Терраса, Видеонаблюдение, Охраняемая территория, Забор, ограждение, Сад, огород
Коммуникации: Газ, Центральный водопровод, Электричество, Канализация септик, Вывоз отходов, Асфальтированная дорога
Инфраструктура (до 500 метров): Детский сад, Школа, Остановка транспорта, Рынок, Магазин, киоск, Супермаркет, ТРЦ, Парк, зелёная зона, Детская площадка, Аптека, Больница, поликлиника, Ресторан, кафе, Кинотеатр, театр, Отделение почты, Отделение банка, банкомат
Ландшафт (до 1 км.): Море
Описание
Площадь участка 2 сотки
Все коммуникации!
Дом расположен на обжитой улице (не поле)!
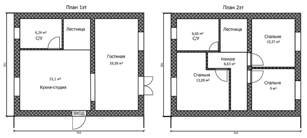
1-й этаж
60 кв.м кухня студия, спальня, санузел, прихожая.
2-ой этаж
60 кв.м
3 спальни и санузел.
Во дворе тротуарная плитка, ландшафтный дизайн, живые растения, газонная трава.
С чистовой отделкой 54900$
С ремонтом «под ключ» 86900$
Также этот дом можно приобрести в РАССРОЧКУ по индивидуальным условиям и 0% удорожания.
Двухсторонний участок, обжитая улица, асфальтированный подъезд, освещение, охраняемая территория, конечная 221 маршрутки 500 метров.
До пляжа 5 минут на машине.
Продуктовые магазины, дет.сад , частная начальная Школа в пешей доступности.
ГосАкт!
Смотрите все мои объявления! Большой выбор домов в Червоный Хутор ! Под разный бюджет!
Также в продаже есть участки, таунхаусы, дуплексы по лучшим ценам!
НАПРЯМУЮ ОТ СОБСТВЕННИКА !
ЗВОНИТЕ СЕЙЧАС !
Связаться с продавцом
xxx xxx xxx

