Частное лицо
Продажа от застройщика
Без комиссии
Возможность обмена
Готов сотрудничать с риэлторами
Подходит под требования єОселя
Этажность: 4
Общая площадь: 820 м²
Количество комнат: 7
Площадь участка: 8 соток
Тип дома: Дуплекс
Тип стен: Газоблок
Внешнее утепление стен: Минеральная вата
Тип кровли: Металлочерепица
Санузел: 2 и более
Меблирование: Нет
Описание
Продам дом в Совиньоне 3 (Люстдорф, ул. Коралловая 3). Без комиссии, от собственника!
На участке 8 соток размещен основной дом и гостевой домик. Участок двухсторонний что позволяет продать по частям. До моря 7минут.
ОСНОВНОЙ дом:
Построен из газоблока, толшина 40см плюс утеплен минеральною ватой (не пенопласт!). Цокольный этаж полностью из монолита (не бетонные блоки), можно использовать как укрытие.
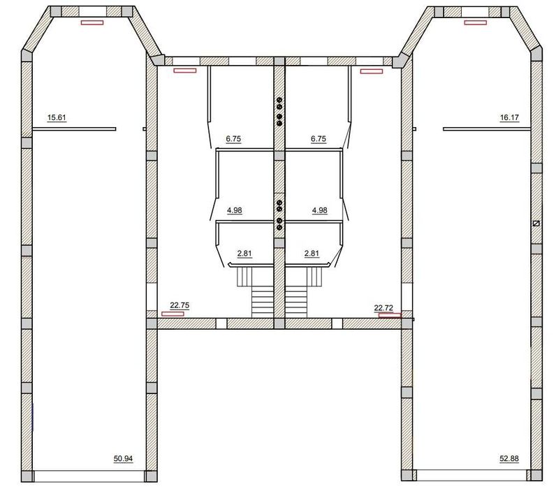
Площадь ОДНОЙ половины 370м.кв. (общая всего дома 740м.кв.).
Имеет цокольный этаж, два основных этажа и мансарду (если смотреть фронтальные фото – то 4 этажа, со двора выглядит как три).
Кровля металлочерепица. Выполнена частична внутренняя отделка.
Въезд выложен плиткой.
Помещения основного дома по ОДНОЙ половине (всего две половины):
Цоколь: гараж на две машины (облицован плиткой), винная комната, мастерская, сауна, санузел (облицован плиткой), тех помещения, погреб.
Первый этаж: холл, кухня-гостинная, две спальни, санузел.
Второй этаж: кабинет, три спальни, санузел.
Мансарда: свободная планировка, можно оборудовать спортзал, бильярдную и т.д.
Дом качественно строился для себя. Высокие потолки и большие окна делают все комнаты светлыми и комфортными. Планировка позволяет сделать один большой дом или дуплекс.
ГОСТЕВОЙ дом:
Построен из газоблока, толшина 40см плюс. Цокольный этаж полностью из монолита, можно использовать как укрытие.
Площадь 85м.кв.
Имеет цокольный этаж, два основных этажа и чердак.
Кровля металлочерепица.
Помещения:
Цоколь: свободная планировка, можно оборудовать спортзал, бильярдную, винный погреб и т.д.
Первый этаж: холл, кухня-гостинная, спальня, санузел.
Второй этаж: холл, две спальни.
Чердак: свободная планировка.
Отлично подойдет под МИНИ ОТЕЛЬ (можно сделать 5 аппартаментов или 13-15 номеров). Также основной дом можно продать как четыре квартиры + гостевой дом.
Готовы рассмотретт продажу по частям: гостевой отдельно и основной левая и правая часть. Участок позволяет сделать такое разделение.
За более подробной информацией звоните или пишите (вышлю дополнительные фото и видео). Стоимость указана за ВСЕ дома и ВЕСЬ участок, возможна продажа частями.
На участке 8 соток размещен основной дом и гостевой домик. Участок двухсторонний что позволяет продать по частям. До моря 7минут.
ОСНОВНОЙ дом:
Построен из газоблока, толшина 40см плюс утеплен минеральною ватой (не пенопласт!). Цокольный этаж полностью из монолита (не бетонные блоки), можно использовать как укрытие.
Площадь ОДНОЙ половины 370м.кв. (общая всего дома 740м.кв.).
Имеет цокольный этаж, два основных этажа и мансарду (если смотреть фронтальные фото – то 4 этажа, со двора выглядит как три).
Кровля металлочерепица. Выполнена частична внутренняя отделка.
Въезд выложен плиткой.
Помещения основного дома по ОДНОЙ половине (всего две половины):
Цоколь: гараж на две машины (облицован плиткой), винная комната, мастерская, сауна, санузел (облицован плиткой), тех помещения, погреб.
Первый этаж: холл, кухня-гостинная, две спальни, санузел.
Второй этаж: кабинет, три спальни, санузел.
Мансарда: свободная планировка, можно оборудовать спортзал, бильярдную и т.д.
Дом качественно строился для себя. Высокие потолки и большие окна делают все комнаты светлыми и комфортными. Планировка позволяет сделать один большой дом или дуплекс.
ГОСТЕВОЙ дом:
Построен из газоблока, толшина 40см плюс. Цокольный этаж полностью из монолита, можно использовать как укрытие.
Площадь 85м.кв.
Имеет цокольный этаж, два основных этажа и чердак.
Кровля металлочерепица.
Помещения:
Цоколь: свободная планировка, можно оборудовать спортзал, бильярдную, винный погреб и т.д.
Первый этаж: холл, кухня-гостинная, спальня, санузел.
Второй этаж: холл, две спальни.
Чердак: свободная планировка.
Отлично подойдет под МИНИ ОТЕЛЬ (можно сделать 5 аппартаментов или 13-15 номеров). Также основной дом можно продать как четыре квартиры + гостевой дом.
Готовы рассмотретт продажу по частям: гостевой отдельно и основной левая и правая часть. Участок позволяет сделать такое разделение.
За более подробной информацией звоните или пишите (вышлю дополнительные фото и видео). Стоимость указана за ВСЕ дома и ВЕСЬ участок, возможна продажа частями.
ID: 873888896
Связаться с продавцом
xxx xxx xxx
Опубликовано 07 марта 2026 г.
Продам дом в Совиньоне3/ Люстдорф. От СОБСТВЕННИКА
339 950 $
Договорная
Местоположение
Черноморка
Николаевская область
