Бизнес
Без комиссии
Готов сотрудничать с риэлторами
Расстояние до ближайшего города: В городе
Тип недвижимости: Земля жилой и общественной застройки
Кадастровый номер: 8000000000:79:427:0003
Площадь участка: 6.40 соток
Описание
Земельна ділянка за адресою: м. Київ, Голосіївський район, вулиця Ломоносова, 73 (нова назва вулиці: Юлії Здановської)
Категорія земель: землі житлової та громадської забудови
Вид цільового призначення земельної ділянки: 03.10 для будівництва та обслуговування адміністративних будинків, офісних будівель компаній, які займаються підприємницькою діяльністю, пов’язаною з отриманням прибутку
Площа земельної ділянки: 0.064 га
Кадастровий номер 8000000000:79:427:0003
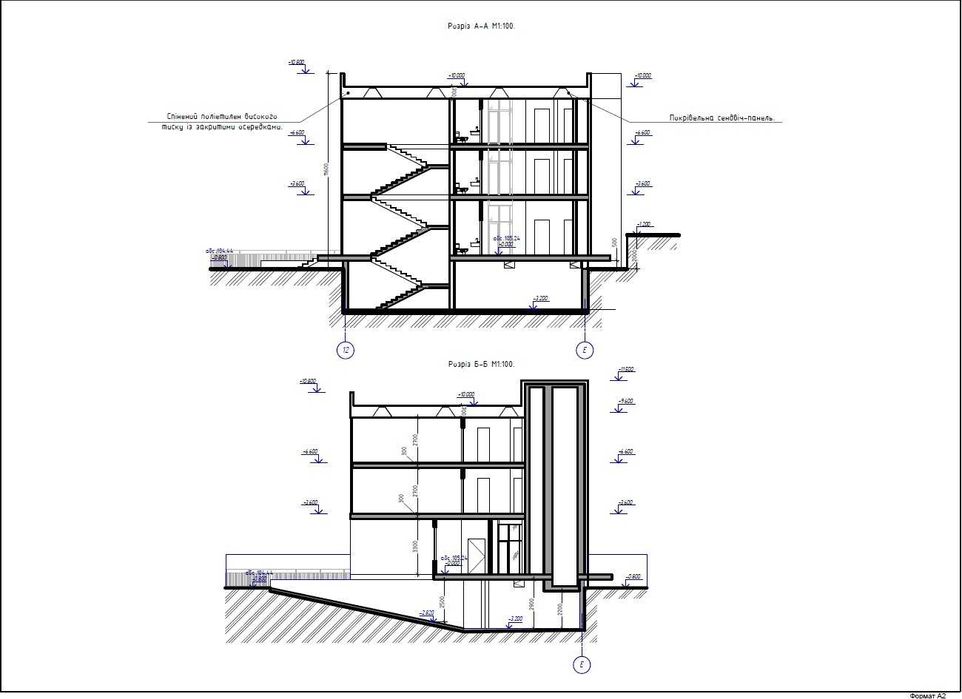
На земельній ділянці планується нове будівництво багатофункціональної будівлі громадського призначення за рахунок знесення (демонтажу) існуючого об'єкту нерухомого майна (нежитлова будівля літ. "Б").
Багатофункціональна будівля громадського призначення передбачена триповерховою:
- на «мінус 1» поверсі передбачені технічні та допоміжні приміщення функціонування об’єкту та підземний паркінг, що провітрюється;
- на 1 поверсі розміщуються вхідна група, групові санвузли, пост охорони, громадські приміщення - наприклад таки як: відділення банківської установи, офіс кур'єрської доставки, кав'ярня, підприємства торгівлі та громадського харчування – кафе, адміністративно-побутові приміщення кафе, магазини непродовольчих товарів та ін.;
- на 2 та 3 поверхах розміщуються офісні приміщення за кабінетною системою (адвокатської контори, юридичної консультації, копіювальний центр, та ін)
Співпрацюю з АН. Ставте одразу в базу. Хазяїн.
Категорія земель: землі житлової та громадської забудови
Вид цільового призначення земельної ділянки: 03.10 для будівництва та обслуговування адміністративних будинків, офісних будівель компаній, які займаються підприємницькою діяльністю, пов’язаною з отриманням прибутку
Площа земельної ділянки: 0.064 га
Кадастровий номер 8000000000:79:427:0003
На земельній ділянці планується нове будівництво багатофункціональної будівлі громадського призначення за рахунок знесення (демонтажу) існуючого об'єкту нерухомого майна (нежитлова будівля літ. "Б").
Багатофункціональна будівля громадського призначення передбачена триповерховою:
- на «мінус 1» поверсі передбачені технічні та допоміжні приміщення функціонування об’єкту та підземний паркінг, що провітрюється;
- на 1 поверсі розміщуються вхідна група, групові санвузли, пост охорони, громадські приміщення - наприклад таки як: відділення банківської установи, офіс кур'єрської доставки, кав'ярня, підприємства торгівлі та громадського харчування – кафе, адміністративно-побутові приміщення кафе, магазини непродовольчих товарів та ін.;
- на 2 та 3 поверхах розміщуються офісні приміщення за кабінетною системою (адвокатської контори, юридичної консультації, копіювальний центр, та ін)
Співпрацюю з АН. Ставте одразу в базу. Хазяїн.
ID: 877186371
Связаться с продавцом
xxx xxx xxx
Опубликовано 12 января 2026 г.
Продам ділянку з проектом під комерцію. м. Київ.
550 000 $
Местоположение
Киев, Соломенский
Киевская область