Бизнес
Вид объекта: Вторичка
Тип дома: Жилой фонд от 2021 р.
Название ЖК: Бережанский
Этаж: 2
Этажность: 25
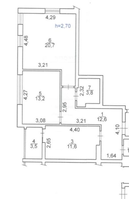
Общая площадь: 67 м²
Площадь кухни: 12 м²
Количество комнат: 2 комнаты
Планировка: Раздельная
Санузел: 2 и более
Отопление: Собственная котельная
Ремонт: После строителей
Инфраструктура (до 500 метров): Школа, Магазин, киоск, Парк, зелёная зона, Детская площадка, Отделение почты, Бювет, Ресторан, кафе, Супермаркет, ТРЦ, Остановка транспорта, Отделение банка, банкомат, Кинотеатр, театр, Аптека, Больница, поликлиника, Детский сад, Рынок
Ландшафт (до 1 км.): Парк
Описание
ПРОДАЄТЬСЯ 2-х кімна квартира яка розташована на 2 поверсі в 2 секції .
ЖК Бережанский на вулиці Гулака 4.
В Оболонському районі, Мінський масив.
Полоща квартири 67м.кв.
Будинок введений в експлуатацію та заселений в 2021 році.
Закрита територія, консьерж, відеонагляд.
Встановлений генератор, завжди працюють літи, опалення та водопостачання.
В новому ЖК "Бережанський". Зручне та функціональне планування .
КВАТИРУ МОЖНА ПРИДБАТИ ПО ВСІМ ДЕРЖАВНИМ ПРОГРАМАМ.
Дуже зручне планування, велика кухня з виходом на лоджію, два окремих санвузли, дві роздільні кімнати.
Є можливість перепланування і збільшення кухні зарахунок лоджії.
Стан після будівельників, стяжка підлоги, штукатурка, лічильники на воду, світло, тепло, радіатори опалення.
Можливе придбання паркомісця у підземному паркуванні на території комплексу.
В будинку встановлено два пасажирські ліфти і один вантажний ліфт.
З квартири відкривається вид на затишний двір.
Будинок із цегляними стінами, виконаний за монолітно-каркасною технологією.
Зовнішні стінки утеплені мінеральною ватою.
Поблизу ЖК є парк, магазини, кафе, салони краси, офіси.
Є місця для заняття спортом, дитячі майданчики, школи.
Зручна транспортна розв'язка, яка дозволяє легко потрапити в будь-яку точку міста.
Станція метро "Мінська" - 10 хвилин.
Ціна: 75000 доларів.
Дзвоніть домовимось!!!!
ЖК Бережанский на вулиці Гулака 4.
В Оболонському районі, Мінський масив.
Полоща квартири 67м.кв.
Будинок введений в експлуатацію та заселений в 2021 році.
Закрита територія, консьерж, відеонагляд.
Встановлений генератор, завжди працюють літи, опалення та водопостачання.
В новому ЖК "Бережанський". Зручне та функціональне планування .
КВАТИРУ МОЖНА ПРИДБАТИ ПО ВСІМ ДЕРЖАВНИМ ПРОГРАМАМ.
Дуже зручне планування, велика кухня з виходом на лоджію, два окремих санвузли, дві роздільні кімнати.
Є можливість перепланування і збільшення кухні зарахунок лоджії.
Стан після будівельників, стяжка підлоги, штукатурка, лічильники на воду, світло, тепло, радіатори опалення.
Можливе придбання паркомісця у підземному паркуванні на території комплексу.
В будинку встановлено два пасажирські ліфти і один вантажний ліфт.
З квартири відкривається вид на затишний двір.
Будинок із цегляними стінами, виконаний за монолітно-каркасною технологією.
Зовнішні стінки утеплені мінеральною ватою.
Поблизу ЖК є парк, магазини, кафе, салони краси, офіси.
Є місця для заняття спортом, дитячі майданчики, школи.
Зручна транспортна розв'язка, яка дозволяє легко потрапити в будь-яку точку міста.
Станція метро "Мінська" - 10 хвилин.
Ціна: 75000 доларів.
Дзвоніть домовимось!!!!
ID: 906757539
Связаться с продавцом
xxx xxx xxx


